Продава се Двустаен апартамент в Бургас, Изгрев – 65 кв.м за 1231 €/кв.м

  • 80,000€
  • 1,231€/m²
Област Бургас, гр. Бургас, Изгрев
  • Apartment
  • Property Type
  • 65
  • sqm
  • 2024
  • Building Year
For sale Agency
Област Бургас, гр. Бургас, Изгрев
  • 80,000€
  • 1,231€/m²

Накратко за имота

  • Apartment
  • Property Type
  • 65
  • sqm
  • 2024
  • Building Year

Description

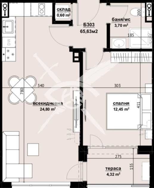
Компания Х представя на Вашето внимание двустаен апартамент в Хоризонт. МЕСТОПОЛОЖЕНИЕ: Намира се в спокойна част на района, в близост до всичко необходимо за еднно домакинство, както и спирки на градски транспорт и учебни заведения. СТРОИТЕЛСТВО: Апартаментът е разположен на трети етаж, тухла. РАЗПРЕДЕЛЕНИЕ: Жилището разполага с площ 65.63 кв.м., състои се от хол с кухненски бокс, спалня, баня с тоалетна склад и тераса. СЪСТОЯНИЕ: Имотът се предлага както на тапа, така и на степен до ключ, което Ви дава възможността да го усторите по Ваш вкус и да го превърнете в мечтания дом! Заповядайте да Ви го покажем. Използвайки нашите услуги Вие ще превърнете закупуването на новия си дом в едно приятно изживяване, ще получите персонален консултант, съдействие при кандидатстване за кредит от всички банки в България, интериорни дизайнери и екип, който да се погрижи за нужните документи по Вашата сделка. На Ваше разположение сме всеки ден, от понеделник до неделя от 09:00 до 20:00ч. Възползвайте се от безплатна консултация в наш офис, където ще ви спестим време и ще ви запознаем с всички актуални имоти в България, отговарящи на Вашето търсене. Свържете се с нас на 08******90 или на 08******83 и цитирайте кода към имота: 799 – 27707.

Details

Updated on January 1, 1970 at 12:00 am
  • Price: 80,000€
  • Size: 65 кв.м
  • Rooms: 2
  • Building Year: 2024
  • Property Type: Apartment
  • Operation: For sale

Extra Details

  • Building Material: Brick
  • Floor: 3-ти
  • Total Floors: 9
  • Heating: Electricity
  • Furniture: Not Furnitured
  • Building Condition: В строеж
  • Преход: Без преход
  • City Бургас
  • Region Област Бургас
  • Квартал Изгрев
  • Country Bulgaria

0 Review

Sort by:
Leave a Review

    Leave a Review

    Compare listings

    Compare
    Olx Недвижими Имоти
    • OLX Real Estate