Продава се Двустаен апартамент в Пловдив, Тракия – 72 кв.м за 541 €/кв.м

  • 76,193€
  • 541€/m²
Област Пловдив, гр. Пловдив, Тракия
  • Apartment
  • Property Type
  • 72
  • sqm
  • 2024
  • Building Year
For sale Agency
Област Пловдив, гр. Пловдив, Тракия
  • 76,193€
  • 541€/m²

Накратко за имота

  • Apartment
  • Property Type
  • 72
  • sqm
  • 2024
  • Building Year

Description

Компания X представя на Вашето внимание двустаен апартамент в кв.Тракия.

МЕСТОПОЛОЖЕНИЕ:Квартал ‘Тракия’ е един от големите квартали в град Пловдив, който се намира в източната част на града.В квартала се намират различни училища, детски градини, магазини, заведения, паркове и други обществени места. Тракия е много обширен и разнообразен по отношение на обитателите си и предлага различни услуги и удобства.

СТРОИТЕЛСТВО: Апартаментът се намира на 2 етаж , тухла.

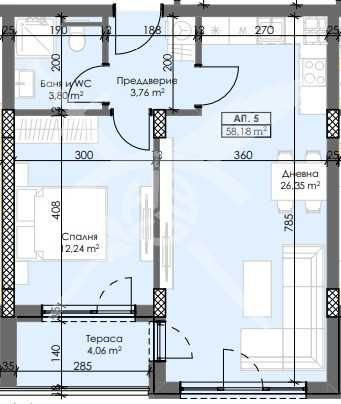
РАЗПРЕДЕЛЕНИЕ: Жилището разполага с площ от 72кв.м. дневна,спалня,баня,тоалета,тераса.

СЪСТОЯНИЕ: В строеж.

Заповядайте да Ви го покажем. Използвайки нашите услуги Вие ще превърнете закупуването на новия си дом в едно приятно изживяване, ще получите персонален консултант, съдействие при кандидатстване за кредит от всички банки в България, интериорни дизайнери и екип, който да се погрижи за нужните документи по Вашата сделка. На Ваше разположение сме всеки ден, от понеделник до неделя от 09:00 до 20:00ч. Възползвайте се от безплатна консултация в наш офис, където ще ви спестим време и ще ви запознаем с всички актуални имоти в България, отговарящи на Вашето търсене. Свържете се с нас на 08******90 /на цената на един градски разговор/ или на 08******90 и цитирайте кода към имота:552-20759

Details

Updated on January 1, 1970 at 12:00 am
  • Price: 76,193€
  • Size: 72 кв.м
  • Rooms: 2
  • Building Year: 2024
  • Property Type: Apartment
  • Operation: For sale

Extra Details

  • Building Material: Brick
  • Floor: 2-ри
  • Total Floors: 10
  • Heating: Electricity
  • Furniture: Not Furnitured
  • Building Condition: В строеж
  • Преход: Без преход
  • City Пловдив
  • Region Област Пловдив
  • Квартал Тракия
  • Country Bulgaria

0 Review

Sort by:
Leave a Review

    Leave a Review

    Compare listings

    Compare
    Olx Недвижими Имоти
    • OLX Real Estate