Дава се под наем Двустаен апартамент в Пловдив, Каменица 1 – 78 кв.м за 142638.33 €

  • 142,638€
  • 935€/m²
Област Пловдив, гр. Пловдив, Каменица 1
  • Апартамент
  • Тип на имота
  • 78
  • кв.м
  • 2025
  • Година на строителство
Под наем Агенция
Област Пловдив, гр. Пловдив, Каменица 1
  • 142,638€
  • 935€/m²

Накратко за имота

  • Апартамент
  • Тип на имота
  • 78
  • кв.м
  • 2025
  • Година на строителство

Описание

Компания `Х` представя на Вашето внимание двустаен апартамент в кв. Каменица 1.

МЕСТОПОЛОЖЕНИЕ: Една от добре установени жилищни зони в град Пловдив. Близо е до централните части на града, което го прави удобен за живеене и работа, кварталът е добре обслужван от обществен транспорт. В района има многообразие от магазини, супермаркети, аптеки и други удобства. В Каменица 1 се намират различни видове жилищни сгради от по-стари блокове до нови жилищни комплекси. Като цяло, Каменица 1 предлага добри условия за живот перфектна тиха локация, на крачки от Капана, Античният театър и Пеещите Фонтани, в пешеходна близост до елитни училища, детски градини, магазини и хипермаркети – безценно преимущество в забързаното ни ежедневие.

СТРОИТЕЛСТВО: Апартаментът се намира на 2-ри етаж в тухлена сграда, която предстои да бъде завършена.

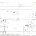
РАЗПРЕДЕЛЕНИЕ: Разполага с площ от 78 кв.м. Апартаментът се състои от коридор, дневна с кухня, спалня, баня с тоалетна, лоджия и балкон

СЪСТОЯНИЕ: В строеж

Заповядайте да Ви го покажем. Използвайки нашите услуги Вие ще превърнете закупуването на новия си дом в едно приятно изживяване, ще получите персонален консултант, съдействие при кандидатстване за кредит от всички банки в България, интериорни дизайнери и екип, който да се погрижи за нужните документи по Вашата сделка. На Ваше разположение сме всеки ден, от понеделник до неделя от 09:00 до 20:00ч. Възползвайте се от безплатна консултация в наш офис, където ще ви спестим време и ще ви запознаем с всички актуални имоти в България, отговарящи на Вашето търсене. Свържете се с нас на 08*********90 или на 08*********90 и цитирайте кода към имота: 817- 24163

Детайли

Обновено на януари 1, 1970 в 12:00 am
  • Цена: 142,638€
  • Квадратура: 78 кв.м
  • Стаи: 2
  • Година на строителство: 2025
  • Тип на имота: Апартамент
  • Операция: Под наем

Допълнителни детайли

  • Строителство: Тухла
  • Етаж: 2-ри
  • Брой етажи на сградата: 6
  • Отопление: Електричество
  • Обзавеждане: Необзаведен
  • Преход: Без преход
  • Град Пловдив
  • Област Област Пловдив
  • Квартал Каменица 1
  • Държава България

0 Отзив

Sort by:
Leave a Review

    Leave a Review

    Compare listings

    Сравняване
    Olx Недвижими Имоти
    • Olx Недвижими Имоти