Дава се под наем Двустаен апартамент в Пловдив, Остромила – 70 кв.м за 81029 €

  • 81,029€
  • 1,158€/m²
Област Пловдив, гр. Пловдив, Остромила
  • Апартамент
  • Тип на имота
  • 70
  • кв.м
  • 2027
  • Година на строителство
Под наем Агенция
Област Пловдив, гр. Пловдив, Остромила
  • 81,029€
  • 1,158€/m²

Накратко за имота

  • Апартамент
  • Тип на имота
  • 70
  • кв.м
  • 2027
  • Година на строителство

Описание

Компания „Х“ представя на Вашето внимание двустаен апартамент в кв.Остромила.

МЕСТОПОЛОЖЕНИЕ: Кварталът разполага с добре развита инфраструктура,обществен транспорт, магазини, училища, детски градини и други удобства.В околността на квартала се намират няколко парка и зелени площи, които предлагат възможности за отдих и разходки на открито.Кварталът е подходящ за семейства с деца, като предлага спокойна и сигурна обстановка за живеене.

СТРОИТЕЛСТВО: Разположен на 3-ти етаж в сграда ново строителство.

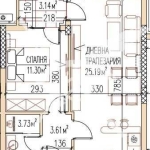
РАЗПРЕДЕЛЕНИЕ: Жилището разполага с площ от 70 кв.м., състои се от входно антре, дневна с трапезария и кухненски бокс, спалня и тераса, към апартамента е и изба №22.

СЪСТОЯНИЕ: В строеж

Заповядайте да Ви го покажем. Използвайки нашите услуги Вие ще превърнете закупуването на новия си дом в едно приятно изживяване, ще получите персонален консултант, съдействие при кандидатстване за кредит от всички банки в България, интериорни дизайнери и екип, който да се погрижи за нужните документи по Вашата сделка. На Ваше разположение сме всеки ден, от понеделник до неделя от 09:00 до 20:00ч. Възползвайте се от безплатна консултация в наш офис, където ще ви спестим време и ще ви запознаем с всички актуални имоти в България, отговарящи на Вашето търсене. Свържете се с нас на 088777990 или на 08******90 и цитирайте кода към имота: 1038-29934

Детайли

Обновено на януари 1, 1970 в 12:00 am
  • Цена: 81,029€
  • Квадратура: 70 кв.м
  • Стаи: 2
  • Година на строителство: 2027
  • Тип на имота: Апартамент
  • Операция: Под наем

Допълнителни детайли

  • Строителство: Тухла
  • Етаж: 3-ти
  • Брой етажи на сградата: 3
  • Отопление: Електричество
  • Обзавеждане: Необзаведен
  • Преход: Без преход
  • Град Пловдив
  • Област Област Пловдив
  • Квартал Остромила
  • Държава България

0 Отзив

Sort by:
Leave a Review

    Leave a Review

    Compare listings

    Сравняване
    Olx Недвижими Имоти
    • Olx Недвижими Имоти