Агенция за недвижими имоти Калиста Естейт има огромното удоволствие да Ви представи двустаен апартамент в ж.к. Лозенец.
Обзавеждане: напълно обзаведен
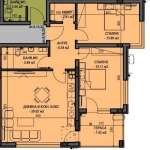
Разпределение: входно антре, кухненски бокс с хол и трапезария, спалня, баня с тоалетна и тераса
Квадратура: 48кв. м
Етажност: 1 от 6
Отопление : ТЕЦ
Изложение: Юг/Изток
Предимства на имота: светъл и просторен на комуникативна локация. Намира се в непосредствена близост до парк, метростанция, заведения, хранителни магазини, училище, детска градина и търговски обекти. Апартаментът разполага с КЛИМАТИК и СЪДОМИЯЛНА машина.
РЕФ.НОМЕР: 2204848
При проявен интерес към тази оферта или ако желаете БЕЗПЛАТНА консултация, може да се свържете с нас на посочения телефон.
Compare listings
Сравняване