ОТ СОБСТВЕНИК!
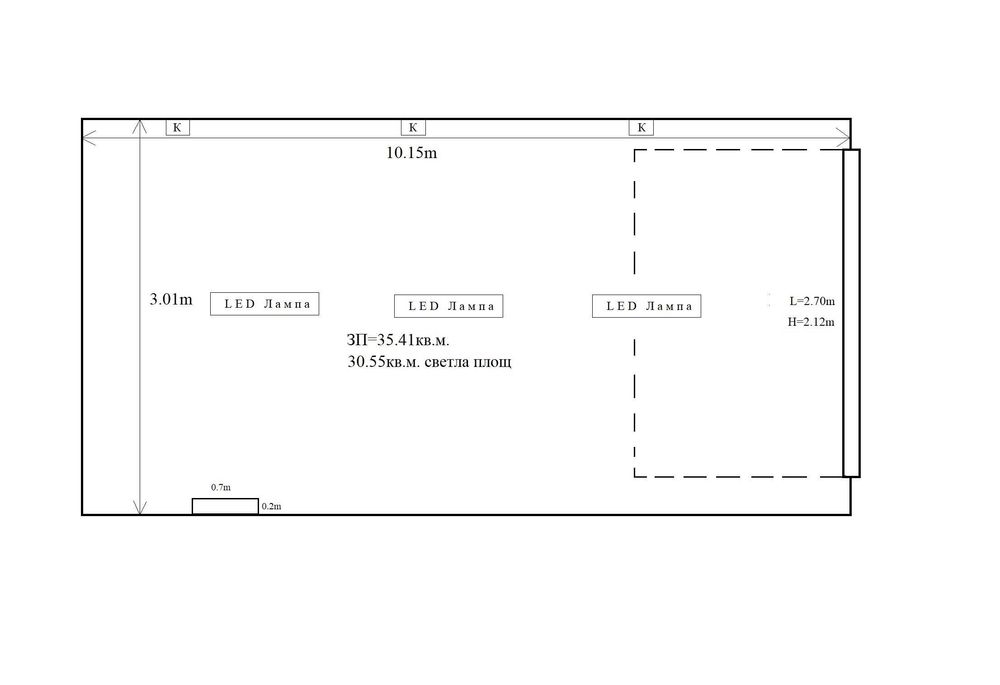
Отдавам гараж под наем с възможност за паркиране на 2 коли, находящ се на ул. Монтевидео 16 в сграда с АКТ16 от 2025-та година, намиращ се в близост до НБУ и Околовръстен път, ситуиран на ниво ПАРТЕР, със застроена площ 36кв/м и чиста светла площ (вътре) 30.6кв/м. За улеснение прилагам оразмерен чертеж и разпределение. Гаражът е с автоматична врата с дистанционно управление. Има собствена партида за ток. Също така има 3бр монофазни контакти и се осветява с 3бр LED лампи. На тавана е монтирана топло и шумоизолация. Възможност за включване към интернет доставчик.
Огледи по всяко време.
При подписване на договор – наем + депозит в размер на наема.
Моля, Агенции да не търсят комисионна от собственика!
Compare listings
Сравняване