Предлага се под наем модерен, напълно оборудван офис с площ 130 кв.м, разположен в една от най-престижните и комуникативни зони на Пловдив – в непосредствена близост до Пловдивски университет „Паисий Хилендарски“.
Помещението е със статут „офис“, отличава се с висок клас изпълнение, енергийна ефективност (сграда клас B) и техническа инфраструктура, готова за корпоративна дейност.
Идеален избор за IT компании, консултантски или финансови офиси, които търсят представителна и функционална среда в центъра на града.
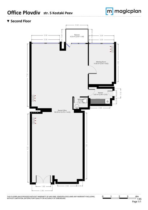
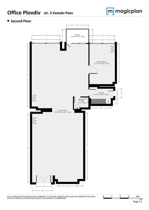
Разпределение и функционалност
Просторна open space зона – 100 кв.м
Отделен кабинет / конферентна зала – 14 кв.м
Кухненско помещение.
Санитарен възел и тераса с гледка към Пловдивски университет.
Техническо оборудване и свързаност
17 LED панела – осветеност по стандартите на РЗИ
17 двойни Ethernet точки с по 3 контакта – възможност за до 30 работни места.
2 оптични кабела (12 влакна) – директна свързаност с всички водещи оператори (A1, Yettel, Vivacom, Evolink, Neterra, Vestitel, и др.)
Опция за гарантиран интернет до 10 Gbps (99.98% uptime).
Patch panel и заключващ се комуникационен шкаф.
Ubiquiti LR Access Point – стабилен Wi-Fi с поддръжка на множество устройства.
4 видеокамери с NVR система – пълен контрол от наемателя и дистанционен достъп.
Активна СОТ система.
Окабеляване за контрол на достъпа – готово за монтаж при нужда.
Комфорт и енергийна ефективност
3 климатика Toshiba Shorai EDGE (RAS-B24J2KVSG-E) – висок енергиен клас, нисък разход и равномерна климатизация.
Подова настилка: висококачествен винил, отговарящ на санитарни стандарти.
Сграда с енергиен клас B** – ниски експлоатационни разходи и стабилен микроклимат.
LED осветление и шумоизолирана структура на помещенията.
Електрозахранване и инфраструктура
Ел. мощност: 13 kW (монофазна)
Възможност за увеличаване на мощността при нужда (налични допълнителни кабели).
Свободен избор на доставчик на електроенергия, с пълно съдействие при процедурата.
Възможност за прехвърляне на партидата на името на наемателя.
Допълнителни предимства
Два входа/изхода и достъп до асансьор.
Отлична транспортна свързаност и пешеходен достъп до всички централни точки
Подходящ за:
IT и софтуерни компании
Консултантски и финансови услуги
Архитектурни и инженерни бюра
Представителства на международни фирми
Условия:
Наемна цена:3100 лв/месец (без ДДС). Издава се опростена фактура.
2 депозитa при подписване на договор.
Помещението ще бъде свободно за наемане от 18 януари 2026 г.
Огледи се извършват в дните понеделник, сряда и петък, в часовия диапазон от 13:30 до 16:00 ч.
Обявената цена подлежи на коментар при сериозен интерес и в зависимост от продължителността на договора и периодичността на плащане.
Включено в наема:
СОТ охрана
Видео наблюдение
Поддръжка на общите части
Разходите за електроенергия и вода са за сметка на наемателя, с възможност за фактуриране.
Локация и достъп
Ул. Костаки Пеев 5, ет. 2, идеален център на Пловдив
В близост до: Пловдивски университет, Billa, банки, ресторанти и институции
Спирка „Пловдивски университет“ – 2 мин.
Централна ЖП гара – 10 мин.
Парк и градина – 250 м
При желание може да се наеме паркомясто пред сградата срещу допълнително заплащане.
Наемодателят се ангажира да окаже пълно съдействие за процедурата по издаване на разрешение от общината.
Compare listings
Сравняване