Архитектурно-проектантско бюро отдава част от офис за споделено ползване.
Офисът се намира в затворен имот с две офис сгради, (Techno Park Sofia), в кв. Дружба 2, бул. Цветан Лазаров 152. В непосредствена близост до сградата се намира спирка на градския транспорт „Техно парк София“, през която минават автобусните линии 204 и 304. Сградата е на 4 нива, с асансьор, и осигурена денонощна охрана, охраняем паркинг и кафе-ресторант (кетъринг, който предлага храна от външна кухня). Районът е комуникативен, в близост има хранителни магазини от няколко големи вериги, както и офиси на куриерски фирми.
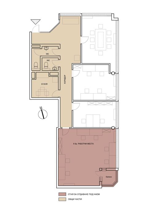
Помещението за отдаване под наем е част от офис и се намира на четвърти етаж. Офисът се състои от приемно пространство, коридор, 4 работни помещения, кухня (оборудвана с кафемашина, хладилник и диспенсър за вода) и две тоалетни. Стаята, която е за отдаване под наем, е отбелязана на схемата – изложението ѝ е югоизток/югозапад, като към нея има и балкон. Общите части (коридор, кухня, тоалетни) са за споделено ползване с втория нааемател и са отбелязани на схемата. Отоплението и охлаждането е централно за сградата, с конвектори с индивидуално настройване на температурата. Стаята е освежена. Помещението е необзаведено, но може да побере около 6 до 8 работни места. На схемата е показано примерно обзавеждане, за да стане ясна големината на помещението. На всички прозорци има монтирани вътрешни щори.
В посочената цена са включени всички режийни разходи (отопление, охлаждане, електроенергия, вода, охрана). При наемане на посоченото помещение, са включени и две паркоместа за служители в охраняемия паркинг. Отделно от това може да се използва и едно споделено паркомясто за посетители и гости.
Площта на стаята за отдаване под наем е 40.50 кв.м
Площта на общите части е 44.5 кв.м
При интерес се свържете с лице за контакти: 08********31 Емил
Огледи за правят в делнични дни от 9:00 ч. до 17.00 ч.
Compare listings
Сравняване