Дава се под наем Тристаен апартамент в Варна, Левски – 97 кв.м за 184000 €

  • 184,000€
  • 1,897€/m²
Област Варна, гр. Варна, Левски
  • Апартамент
  • Тип на имота
  • 97
  • кв.м
  • 2026
  • Година на строителство
Под наем Агенция
Област Варна, гр. Варна, Левски
  • 184,000€
  • 1,897€/m²

Накратко за имота

  • Апартамент
  • Тип на имота
  • 97
  • кв.м
  • 2026
  • Година на строителство

Описание

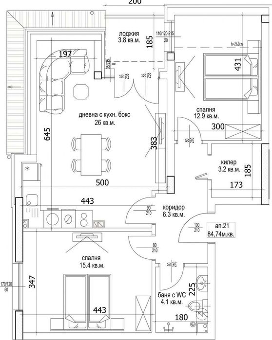
Продава се просторен тристаен апартамент в бутикова сграда с луксозни общи части и модерна архитектура.

Разпределение : коридор ,дневна с кухня и трапезария ,две големи спални ,килер ,баня с тоалет ,тераса . Изложение изток ,североизток.

Предимства :

-отлична локация ,в близост до детска градина ,училище ,магазини ,спирки на общественият транспорт

-луксозни общи части , съвременна архитектура ,топло и шумоизолация на сградата

-утвърден строител ,функционално разпределение на жилищната площ

Апартаментът се предлага завършен по БДС ,по желание на клиента може да се завърши до ключ.

Има възможност за закупуване на паркомясто

При избор на имот винаги може да разчитате на безплатна консултация от специалистите от РОНЕВА ООД.

Предлагаме също така и съдействие за отпускане на банков кредит, помощ при сключване на сделки и подготвяне на нужната документация!

Детайли

Обновено на януари 1, 1970 в 12:00 am
  • Цена: 184,000€
  • Квадратура: 97 кв.м
  • Стаи: 3
  • Година на строителство: 2026
  • Тип на имота: Апартамент
  • Операция: Под наем

Допълнителни детайли

  • Строителство: Тухла
  • Етаж: 6-ти
  • Брой етажи на сградата: 7
  • Отопление: Електричество
  • Обзавеждане: Необзаведен
  • Преход: Без преход

Особености

  • Град Варна
  • Област Област Варна
  • Квартал Левски
  • Държава България

0 Отзив

Sort by:
Leave a Review

    Leave a Review

    Compare listings

    Сравняване
    Olx Недвижими Имоти
    • Olx Недвижими Имоти