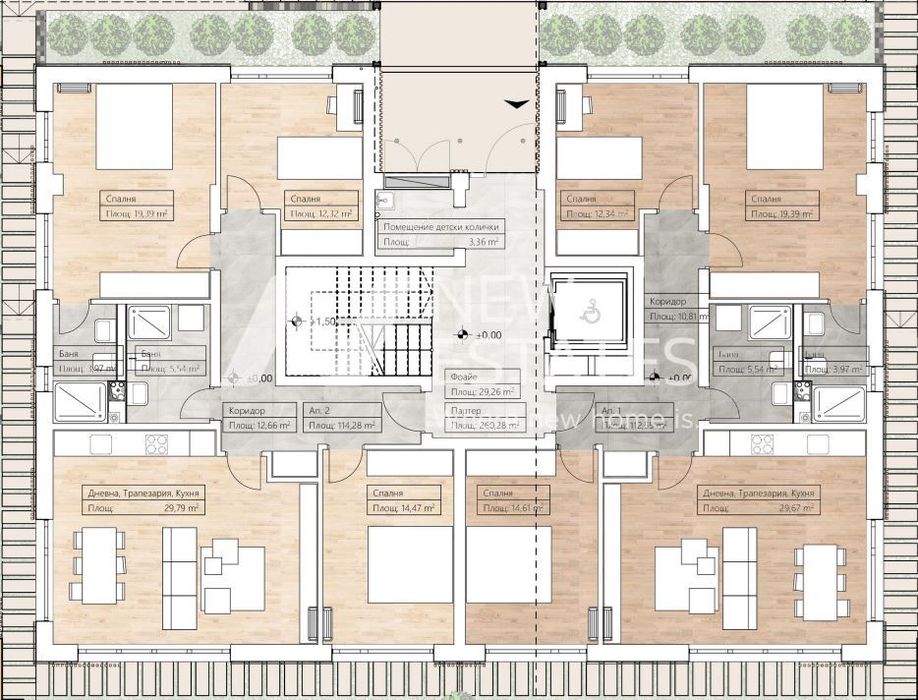
Малка бутикова сграда, разположена на тиха улица в един от най-предпочитаните квартали в София – кв. Бояна. Прецизно планирана, съчетава в себе си съвременна архитектура, изпълнена с качествени и иновативни материали и нови технологии. Сградата предоставя уют, комфорт и качествена среда за живот, постигнати на базата на най-високи международни стандарти.
Използваните модерни материали са селектирани от най-високо качество, издръжливи на атмосферни влияния и едновременно с това, носещи необходимия уют. Сградата се състои от 7 просторни четиристайни жилища, внимателно съобразени да бъдат удобни и максимално функционални. Всеки апартамент ще разполага със собствен двор или тераса. Комфортът на обитаване се допълва от подземно ниво с гаражи за сигурността и удобството на бъдещите собственици, както и дворно пространство, с композирани зелени площи за отдих.
Подарете си светъл и удобен дом в здравословна и уединена среда.
Свържете се с нас за лична презентация сега.
Compare listings
Сравняване