ЕРА Голд Ви представя южен мезонет с три спални в нова жилищна сграда в близост до центъра на София и Военномедицинска болница, кв. Лагера.
Апартаментът се състои от :
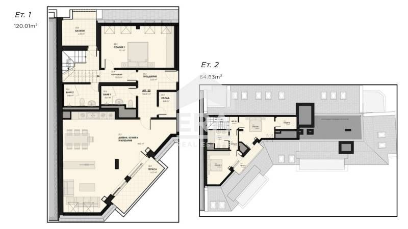
1 етаж : входно антре, дневна с кухненски бокс с излаз към балкон, склад, две спални, едната от която със собствен дрешник, две бани и още един балкон.
2 етаж: антре, две спални с излаз към балкон, едната от която със собствен дрешник, и една баня.
Югоизток.
Обща площ: 224.70m²
Затроена площ: 190.63m²
Етаж: 7/8
Сградата е с отлично местоположение с удобна и бърза връзка с центъра на града, посредством бул. Цар Борис III. В непосредствена близост се намират няколко учебни заведения, детски градини, болници, банки, спортни зони, търговски обекти и спирки на градски транспорт.
ЗА СГРАДАТА:
– Изолация на фасадните повърхности е от EPS/минерална вата с дебелина 10 см.
– Топлоизолация е от XPS с дебелина 14 см
– Отопление на ТЕЦ и климатична система
– Луксозни общи части и фасада
– Външни паркоместа на цена от 30 000Е
АКТ 14 – 2025г.
АКТ 16 до края на 2026 г.
CreditERA предоставя безплатна консултация и съдействие при финансиране на избрания от Вас имот от всички водещи банки в страната и ще договори най-добрите условия за вас!
Оферта №4062094
Compare listings
Сравняване