Продава се Четиристаен апартамент в София, Люлин 2 – 130 кв.м за 1564 €/кв.м

  • 203,300€
  • 1,564€/m²
Област София-град, гр. София, Люлин 2
  • Апартамент
  • Тип на имота
  • 130
  • кв.м
  • 2025
  • Година на строителство
За продажба Агенция
Област София-град, гр. София, Люлин 2
  • 203,300€
  • 1,564€/m²

Накратко за имота

  • Апартамент
  • Тип на имота
  • 130
  • кв.м
  • 2025
  • Година на строителство

Описание

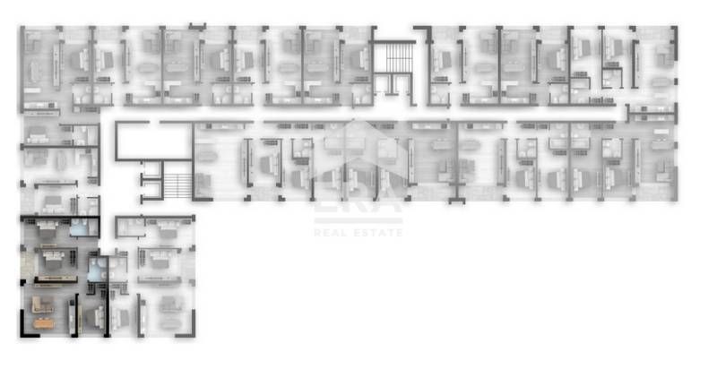
ЕРА Фаворит предлага за продажба слънчев и комфортен четиристаен апартамент, разположен на втори етаж в новострояща се сграда, който има следното разпределение: входно антре, дневна с кухненски бокс и трапезария, родителска спалня с дрешник и отделна баня с тоалетна, втора непреходна спалня, втора баня с тоалетна, трета непреходна спалня. От дневната, първата и втората спалня има излаз към балкон. Изложението на имота е Север/Запад. Към имота е отреден и склад № 126 с площ 4.61 кв.м.

Имотът се намира в многофамилна сграда с различни по големина апартаменти, рзположена на територията на Люлин 2. Инвеститорите са си поставили за цел да допринесат за по-висок комфорт на живеене – с повече светлина, простор, прекрасна паркова среда, енерго ефективност, богато озеленяване. Напълно изградена инфраструктура в района. Материали енергийна ефективност клас А . Просторни апартаменти; големи помещения с функционално разпределение. Елегантната фасадата на сградата осигурява максимална осветеност на домовете и общите части, като допринася за усещане за простор и здравословен вътрешен климат. Големи френски прозорци – повече простор и слънчева светлина у дома. Сградата е в начален етап на строителство.

Светлина и големи отстояния от околните гради. Собствен вътрешен двор с лимитиран достъп, с прекрасна ландшафтна архитектура, зони за почивка, алеи и детски кът, изработен от еко материали. Панорамни гледки към Витоша и склоновете на Стара планина. Подземен паркинг с паркоместа, лимитиран достъп, без такса поддръжка.

Сградата е разположена на отлична локация за района. Редовен градски транспорт, както и метростанция Люлин, която се намира в непосредствена близост.

Оферта №7200027

Детайли

Обновено на януари 1, 1970 в 12:00 am
  • Цена: 203,300€
  • Квадратура: 130 кв.м
  • Стаи: 4
  • Година на строителство: 2025
  • Тип на имота: Апартамент
  • Операция: За продажба

Допълнителни детайли

  • Строителство: Тухла
  • Етаж: 6-ти
  • Брой етажи на сградата: 10
  • Отопление: ТЕЦ
  • Обзавеждане: Необзаведен
  • Състояние на сградата: В строеж
  • Преход: С преход

Особености

  • Град София
  • Област Област София-град
  • Квартал Люлин 2
  • Държава България

0 Отзив

Sort by:
Leave a Review

    Leave a Review

    Compare listings

    Сравняване
    Olx Недвижими Имоти
    • Olx Недвижими Имоти