Продава се Четиристаен апартамент в София, Малинова долина – 114 кв.м за 2299 €/кв.м

  • 262,000€
  • 2,298€/m²
Област София-град, гр. София, Малинова долина
  • Апартамент
  • Тип на имота
  • 114
  • кв.м
  • 2028
  • Година на строителство
За продажба Агенция
Област София-град, гр. София, Малинова долина
  • 262,000€
  • 2,298€/m²

Накратко за имота

  • Апартамент
  • Тип на имота
  • 114
  • кв.м
  • 2028
  • Година на строителство

Описание

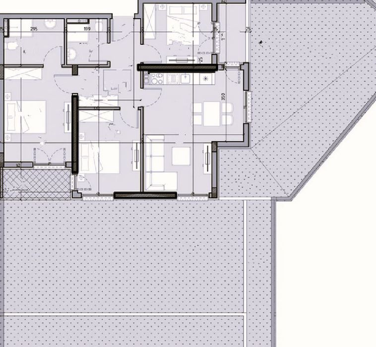
Предлагаме за продажба четиристаен апартамент с обща площ от 114 кв.м, разположен на партерен етаж от 5 в модерна жилищна сграда ново строителство, с планирано завършване през 2028 г. Към имота принадлежи и просторен собствен двор с площ от 168 кв.м, подходящ за озеленяване, зона за отдих, барбекю или детски кът.

Жилището е със следното функционално разпределение: входно антре, просторна дневна с кухненски бокс и трапезария, три самостоятелни спални, две бани с тоалетна, излаз към двора и складово помещение. Апартаментът се предлага необзаведен, което осигурява възможност за довършване по индивидуален проект и стил.

Имотът се намира в кв. Малинова долина един от най-перспективните райони на София, с интензивно развиваща се инфраструктура. Локацията предоставя удобен достъп до градски транспорт, бъдеща метростанция, училища, магазини и зелени площи, което прави имота подходящ както за семейно жилище, така и за дългосрочна инвестиция.

За повече информация и организиране на оглед, не се колебайте да се свържете с нас. Ще се радваме да ви предоставим всички детайли и да уговорим удобен час за посещение!

Отговорен брокер Йоан Мариянов

08******92

Детайли

Обновено на януари 1, 1970 в 12:00 am
  • Цена: 262,000€
  • Квадратура: 114 кв.м
  • Стаи: 4
  • Година на строителство: 2028
  • Тип на имота: Апартамент
  • Операция: За продажба

Допълнителни детайли

  • Строителство: Тухла
  • Етаж: 1-ви
  • Брой етажи на сградата: 5
  • Отопление: Електричество
  • Обзавеждане: Необзаведен
  • Състояние на сградата: Завършена
  • Преход: Без преход
  • Град София
  • Област Област София-град
  • Квартал Малинова долина
  • Държава България

0 Отзив

Sort by:
Leave a Review

    Leave a Review

    Compare listings

    Сравняване
    Olx Недвижими Имоти
    • Olx Недвижими Имоти