ТОПИММО предлага за продажба четиристаен апартамент в новострояща се тухлена сграда в квартал Бриз.
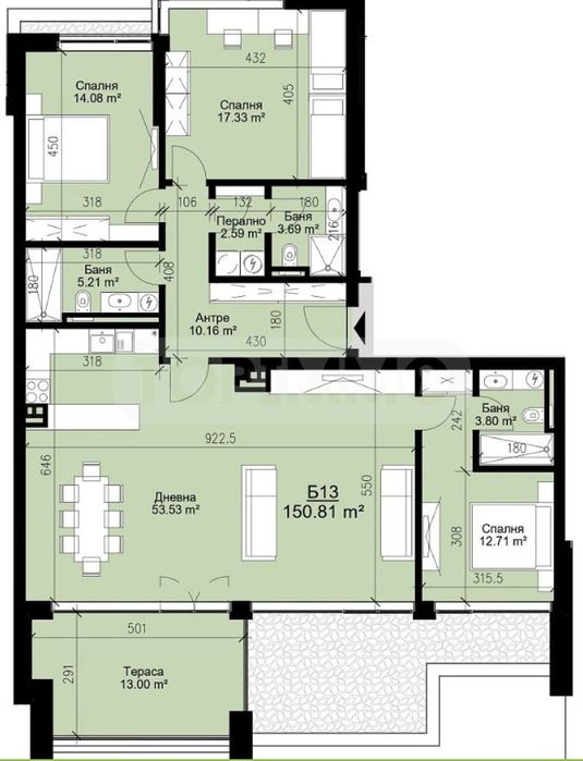
Жилището е разположено на пети етаж в сграда с асансьор и луксозни общи части. Имотът е със следното разпределение: антре, просторна всекидневна с кухненска част 53 кв.м. с излаз на панорамна тераса с невероятна морска панорама, спалня 12.7 кв.м. със собствен санитарен възел, втора спалня 14 кв.м., трета спалня17.30 кв.м., два санитарни възела, перално помещение, изба.
Апартаментът е с правилни форми на стаите, южно изложение с панорама към града и морето.
Гъвкава схема на плащане.
Имот с отлична локация както за лично ползване, така и за отдаване под наем.
Сградата ще бъде завършена с луксозни общи части от строител доказал се във времето с качествено изпълнение на проектите си.
С възможност за закупуване на подземно паркомясто. В сградата предлагаме също така двустайни и тристайни апартаменти.
Използвайки нашите услуги за покупката на новия си дом ще получите съдействие и БЕЗПЛАТНА професионална консултация от наш кредитен консултант.
Можем да организираме оглед в удобно за вас време, свържете се с нас! Референтен номер: PL-3575
Compare listings
Сравняване