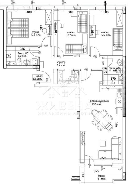
Агенция Живена предлага за продажба 3-стаен апартамент в строеж на луксозен жилищен комплекс в района на Кайсиева градина, град Варна. Апартаментът е с обща площ – 126.58 кв.м, жилищна площ – 106.79 кв.м, изложение: юг/север, разположен на 6-ти етаж от общо 9. Разпределен е по следния начин: дневна с кухненски бокс (29.5 кв.м), 3 спални (12.9, 12.7 и 12.3 кв.м), баня с тоалетна (5.2 кв.м), втора баня с тоалетна (4.1 кв.м), килер/ниша (2.2 кв.м), коридор (9.2 кв.м) и балкон (5.7 кв.м). Обявената цена е в степен на завършеност – по БДС: гипсова мазилка, циментова замазка, PVC дограма (5 или 6-камерна с двойни стъклопакети шир. 26 мм, 4 мм четири сезона и 4 мм бяло флоатно стъкло), ел. инсталация – завършена с ключове, контакти, оптичен кабел до апартамент; ВиК инсталация – на тапа; блиндирана външна врата с облечена декоративна каса. Общи части на сградата: декоративна мазилка, подови настилки и стъпала от гранитогрес или гранит, асансьори Orona. Комплексът се намира до булевард Цар Освободител в района на Метро, магазините за техника и обзавеждане. Предлагат се различен тип апартаменти – с една, две или три спални, разнообразни по площ и разпределения, функционални апартаменти, подходящи за млади семейства, просторни жилища с панорамни гледки. На партера са предвидени търговски обекти за удобство на живущите. Подземното ниво е изцяло отделено за гаражи и паркоместа, а в дворното пространство са обособени външни зони за паркиране и зелени площи. Има възможност за закупуване на паркомясто, на цени, започващи от 14 000 евро. Строежът започна през октомври 2025 г. и ще продължи 3 години; разрешение за ползване (Акт 16) – края на 2028 г. Предлагат се няколко схеми на разсрочено плащане:
Вариант 1: (165 000 евро)
20% при подписване на Предварителен договор
20% при готова покривна плоча на четвърти етаж
40% при подписан Акт 14
20% при подписан Акт 15.
Вариант 2: (160 614 евро)
80% при подписване на ПД
20% при подписан Акт 15.
Вариант 3 (цени от вариант 1):
30% при подписване на ПД
70% с кредит при подписан Акт 14
Вариант 4: (190 062 евро)
20% при подписване на ПД
80% при подписан Акт 15.
Агенция ЖИВЕНА извършва необходимите проверки на имота, който сте избрали, организира всички етапи на сделката до нейното финализиране. Оказваме съдействие за отпускане на банков кредит. Оферта № 7475
Compare listings
Сравняване