Продава се Четиристаен апартамент в Варна, Левски – 144 кв.м за 1301 €/кв.м

  • 187,300€
  • 1,301€/m²
Област Варна, гр. Варна, Левски
Продава се Четиристаен апартамент в Варна, Левски - 144 кв.м за 1301 €/кв.м - Снимка #4
  • Апартамент
  • Тип на имота
  • 144
  • кв.м
  • 2026
  • Година на строителство
За продажба Агенция
Област Варна, гр. Варна, Левски
  • 187,300€
  • 1,301€/m²

Накратко за имота

  • Апартамент
  • Тип на имота
  • 144
  • кв.м
  • 2026
  • Година на строителство

Описание

4-СТАЕН НА ТОП ЦЕНА ОТ 1300Евро/кв.! ТИХ И СПОКОЕН РАЙОН! УНИКАЛЕН!

Агенция АНИ-БО ви предлага чудесна възможност за инвестиция в недвижимо имущество. Ново строителство в кв. Левски! Доказан инвеститор и строител с 30 години опит! Представяме ви за продажба новострояща се бутикова сграда с 23 апартамента започващи от 79 кв.м. до 130 кв.м. с общите части на етаж.

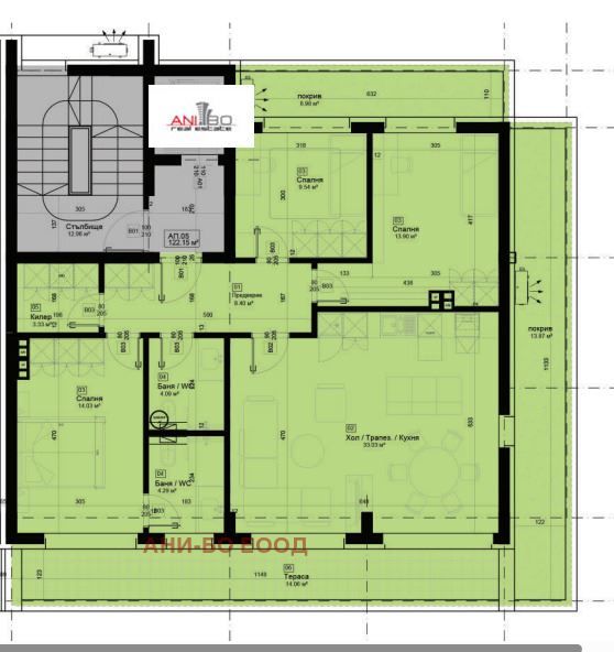
Възползвайте се от уникалната възможност да си закупите 4-стаен апартамент с площ 144,13 кв.м, само за 187300 евро. Състои се от огромен хол с кухня и трапезария ведно с площ от 33кв.м., 3 спални, баня и тоалетна ведно, килер и 1 голяма панорамна тераса. Строителството е качествено и безкомпромисно, помислено е за всеки детайл. Очакван срок за въвеждане в експлоатация е 2026 година.

В близост до магазини, фитнес и други търговски обекти. Тих и спокоен район.

Има възможност за закупуване на надземно паркомясто за 15 000 на евро, подземно паркомясто за 18 000 евро и надземен гараж за 20 000 евро.

Схема на плащане:

10% първоначална вноска при подписване на Предварителен договор;

25% при стартиране на обекта;

35% на Акт 14;

30% при Акт 16.

За повече информация и огледи Венцислав Генчев, тел: 08******15

Детайли

Обновено на януари 1, 1970 в 12:00 am
  • Цена: 187,300€
  • Квадратура: 144 кв.м
  • Стаи: 4
  • Година на строителство: 2026
  • Тип на имота: Апартамент
  • Операция: За продажба

Допълнителни детайли

  • Строителство: Тухла
  • Етаж: 5-ти
  • Брой етажи на сградата: 5
  • Отопление: Електричество
  • Обзавеждане: Необзаведен
  • Състояние на сградата: Завършена
  • Преход: Без преход
  • Град Варна
  • Област Област Варна
  • Квартал Левски
  • Държава България

0 Отзив

Sort by:
Leave a Review

    Leave a Review

    Compare listings

    Сравняване
    Olx Недвижими Имоти
    • Olx Недвижими Имоти