Продава се Двустаен апартамент в Айтос – 64 кв.м за 408 €/кв.м

  • 51,070€
  • 408€/m²
Област Бургас, гр. Айтос
  • Апартамент
  • Тип на имота
  • 64
  • кв.м
  • 2024
  • Година на строителство

Накратко за имота

  • Апартамент
  • Тип на имота
  • 64
  • кв.м
  • 2024
  • Година на строителство

Описание

Компания Х представя на Вашето внимание двустаен апартамент в Айтос.

МЕСТОПОЛОЖЕНИЕ: Намира се в спокойна част на района, на минути пеша от центъра на града, както и в близост до хранителен магазин и спирка на градски транспорт.

СТРОИТЕЛСТВО: Апартаментът е разположен на трети етаж, тухла.

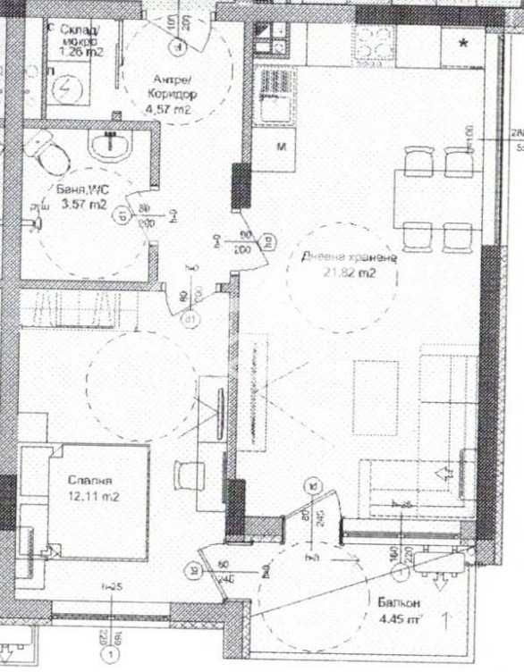
РАЗПРЕДЕЛЕНИЕ: Жилището разполага с площ 64кв.м. с общите части, състои се от хол с кухненски бокс, спалня, баня с тоалетна и тераса.

СЪСТОЯНИЕ: Апартаментът се предлага на степен до ключ, което Ви дава възможността да го устроите по Ваш вкус и да го превърнете в мечтания дом!

Заповядайте да Ви го покажем. Използвайки нашите услуги Вие ще превърнете закупуването на новия си дом в едно приятно изживяване, ще получите персонален консултант, съдействие при кандидатстване за кредит от всички банки в България, интериорни дизайнери и екип, който да се погрижи за нужните документи по Вашата сделка. На Ваше разположение сме всеки ден, от понеделник до неделя от 09:00 до 20:00ч. Възползвайте се от безплатна консултация в наш офис, където ще ви спестим време и ще ви запознаем с всички актуални имоти в България, отговарящи на Вашето търсене. Свържете се с нас и цитирайте кода към имота: 65853

Детайли

Обновено на януари 1, 1970 в 12:00 am
  • Цена: 51,070€
  • Квадратура: 64 кв.м
  • Стаи: 2
  • Година на строителство: 2024
  • Тип на имота: Апартамент
  • Операция: За продажба

Допълнителни детайли

  • Строителство: Тухла
  • Етаж: 3-ти
  • Брой етажи на сградата: 6
  • Отопление: Електричество
  • Обзавеждане: Необзаведен
  • Състояние на сградата: Завършена
  • Преход: Без преход
  • Град Айтос
  • Област Област Бургас
  • Държава България

0 Отзив

Sort by:
Leave a Review

    Leave a Review

    Compare listings

    Сравняване
    Olx Недвижими Имоти
    • Olx Недвижими Имоти