Продава се Двустаен апартамент в Асеновград – 79 кв.м за 854 €/кв.м

  • 67,430€
  • 854€/m²
Област Пловдив, гр. Асеновград
  • Апартамент
  • Тип на имота
  • 79
  • кв.м
  • 2025
  • Година на строителство
За продажба Агенция
Област Пловдив, гр. Асеновград
  • 67,430€
  • 854€/m²

Накратко за имота

  • Апартамент
  • Тип на имота
  • 79
  • кв.м
  • 2025
  • Година на строителство

Описание

Компания X представя на Вашето внимание двустаен апартамент в Асеновград.

МЕСТОПОЛОЖЕНИЕ: Районът около Асеновград е обграден от красива природа, включително планините Родопи.Това прави града атрактивно място за туризъм и почивка на открито.В Асеновград се намира крепостта Асенова крепост, която е един от най-големите и най-значимите средновековни крепости в България.

СТРОИТЕЛСТВО: Апартаментът се намира на 3 етаж, в сграда ново строителство.

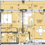
РАЗПРЕДЕЛЕНИЕ: Жилището разполага с площ от 79 кв.м., разпределена по следния начин: дневна с кухненски бокс, спалня, баня и тоалетна , тераса, коридор и изба 7,61 кв.м, извън цената на апартамента.

СЪСТОЯНИЕ: В строеж.

Заповядайте да Ви го покажем. Използвайки нашите услуги Вие ще превърнете закупуването на новия си дом в едно приятно изживяване, ще получите персонален консултант, съдействие при кандидатстване за кредит от всички банки в България, интериорни дизайнери и екип, който да се погрижи за нужните документи по Вашата сделка. На Ваше разположение сме всеки ден, от понеделник до неделя от 09:00 до 20:00ч. Възползвайте се от безплатна консултация в наш офис, където ще ви спестим време и ще ви запознаем с всички актуални имоти в България, отговарящи на Вашето търсене. Свържете се с нас на 08******90 или на 08******90 и цитирайте кода към имота: 793- 23681

Детайли

Обновено на януари 1, 1970 в 12:00 am
  • Цена: 67,430€
  • Квадратура: 79 кв.м
  • Стаи: 2
  • Година на строителство: 2025
  • Тип на имота: Апартамент
  • Операция: За продажба

Допълнителни детайли

  • Строителство: Тухла
  • Етаж: 3-ти
  • Брой етажи на сградата: 6
  • Отопление: Електричество
  • Обзавеждане: Необзаведен
  • Състояние на сградата: В строеж
  • Преход: Без преход
  • Град Асеновград
  • Област Област Пловдив
  • Държава България

0 Отзив

Sort by:
Leave a Review

    Leave a Review

    Compare listings

    Сравняване
    Olx Недвижими Имоти
    • Olx Недвижими Имоти