Продава се Двустаен апартамент в Банкя – 62 кв.м за 2178 €/кв.м

  • 135,000€
  • 2,177€/m²
Област София-град, гр. Банкя
  • Апартамент
  • Тип на имота
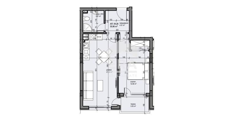
  • 62
  • кв.м
  • 2025
  • Година на строителство
За продажба Агенция
Област София-град, гр. Банкя
  • 135,000€
  • 2,177€/m²

Накратко за имота

  • Апартамент
  • Тип на имота
  • 62
  • кв.м
  • 2025
  • Година на строителство

Описание

ЕРА Фаворит предлага за продажба просторен двустаен апартамент в новострояща се сграда в луксозен затворен комплекс, недалеч от центъра на гр. Банкя. Разпределението включва входно антре, дневна с кухненски бокс и трапезария, уютната спалня с гардеробна, балкон с достъп от спалнята и дневната, баня с тоалетна. Площ на апартамента – 56/ 62 кв.м..

Изложение: Южно изложение за спалнята и всекидневната. Прекрасно жилище!

Имотът е част от нов затворен комплекс с най-високо качество на строителство и използвани материали. Отоплението ще бъде на газ. Сградата е с висока енергийна ефективност и последно поколение изолация срещу акустичен и ударен шум. На прозорците ще бъде монтирана немска шест-камерна PVC дограма REHAU/Thyssen. В сградата ще бъдат монтирани и безшумни асансьори KONE. Акцент е и подобрената топлоизолация на покрива.

Етап на строителство – начален, излята фундаментна плоча. Акт 16 се очаква в края на 2027 г. Такса поддръжка за комплекса – 1 Евро без ДДС/ кв.м.

Местоположението на комплекса е на изключително тиха локация с прекрасна гледка към Витоша и Люлин планина, в близост до множество частни имоти, две училища, частна и държавна детска градина, магазини и търговски обекти. Редовен градски транспорт в района и връзка с метростанция Сливница.

Ако искате да живеете сред природата, в спокойна и комфортна среда, заповядайте на презентация при нас! Комплексът е свободен от автомобили и предлага всички удобства на курортния град Банкя.

Агенция ЕРА Фаворит е член на НСНИ и администратор на лични данни.

Преди огледа се провежда среща в нашия офис, за да се запознаем с изискванията Ви и за да оформим документи съгласно ЗЗД и ЗМИП.

По време на огледа се подписва Протокол за оглед. За този имот се дължи комисион към агенцията.

Предлагаме Ви юридическо съдействие през целия процес на покупката.

Агенцията съдейства за безплатна кредитна консултация от CREDITERA – лицензиран финансов брокер към БНБ!

Всеки ERA офис е с независимо управление и собственост!

НАШАТА МРЕЖА ИМА ВЕЧЕ ПОВЕЧЕ ОТ 45 ОФИСА! НИЕ СМЕ НАД 400 ОПИТНИ КОНСУЛТАНТА В ЦЯЛА БЪЛГАРИЯ! СТАНИ ЕДИН ОТ НАС!

Оферта №7200156

Детайли

Обновено на януари 1, 1970 в 12:00 am
  • Цена: 135,000€
  • Квадратура: 62 кв.м
  • Стаи: 2
  • Година на строителство: 2025
  • Тип на имота: Апартамент
  • Операция: За продажба

Допълнителни детайли

  • Строителство: Тухла
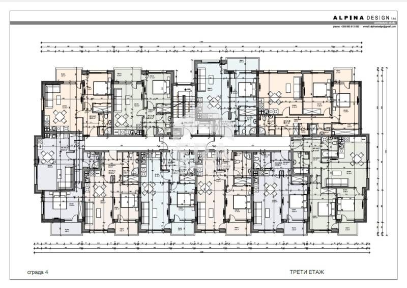
  • Етаж: 3-ти
  • Брой етажи на сградата: 4
  • Отопление: Газ
  • Обзавеждане: Необзаведен
  • Състояние на сградата: В строеж
  • Преход: Без преход

Особености

  • Град Банкя
  • Област Област София-град
  • Държава България

0 Отзив

Sort by:
Leave a Review

    Leave a Review

    Compare listings

    Сравняване
    Olx Недвижими Имоти
    • Olx Недвижими Имоти