Оферта 00580
Всички имоти в Сарафово на едно място, може да видите на сайта:
www.ImotiSarafovo.com
Агенция 1 за Сарафово с 14 годишен опит.
ОПИСАНИЕ НА ИМОТА:
Модерен дом в тиха морска среда!
Жилищна сграда в една от най-предпочитаните зони на кв. Сарафово новата част, отличаваща се с тишина, простор и бърз достъп до морето. Сградата се намира на комуникативно, но същевременно спокойно място, само на няколко минути пеша от плажната ивица.
Основни характеристики:
Два отделни входа с контролиран достъп.
Асансьори във всеки вход.
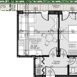
Функционално разпределени апартаменти едностайни, двустайни и тристайни.
Апартаменти с двор на етаж 1.
Открити паркоместа и подземни гаражи.
Съвременно строителство с висок клас материали и енергийна ефективност.
Отлична инфраструктура и удобен достъп до центъра на Бургас и Летище Бургас
Строителният процес на сградата ще започне м.юни 2025г. и ще продължи 24 месеца.
Предоставяме гъвкави финансови условия, за да направим процеса на закупуване на вашето ново жилище възможно най-лесен и удобен.
ЗАВЪРШЕНОСТ: В процес на строителство
ПЛАНИРАНО ЗАВЪРШВАНЕ: 2027 г.
ТАКСА ПОДДРЪЖКА: Без
Агенцията работи по изискванията на БДС EN 15733 Услуги на брокерите на недвижими имоти
Работим с колеги БРОКЕРИ и АГЕНЦИИ за недвижими имоти по тази оферта.
Compare listings
Сравняване