Продава се Двустаен апартамент в Китен – 127 кв.м за 778 €/кв.м

  • 193,070€
  • 777€/m²
Област Бургас, гр. Китен
  • Апартамент
  • Тип на имота
  • 127
  • кв.м
  • 2025
  • Година на строителство

Накратко за имота

  • Апартамент
  • Тип на имота
  • 127
  • кв.м
  • 2025
  • Година на строителство

Описание

Компания Х представя на Вашето внимание двустаен апартамент в Китен.

МЕСТОПОЛОЖЕНИЕ: Китен предлага красиви плажове, чисто море и спокойна атмосфера, което го прави идеално място за релаксация и семейни почивки.

СТРОИТЕЛСТВО: Апартаментът е разположен на четвърти етаж, тухла.

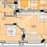
РАЗПРЕДЕЛЕНИЕ: Жилището разполага с площ 127,35 кв.м., състои се от едно основно хол с кухня, спалня, баня с тоалетна и тераса.

СЪСТОЯНИЕ: Имотът се предлага както на тапа, така и на степен до ключ,

което Ви дава възможността да го усторите по Ваш вкус и да го превърнете

в мечтания дом!

Заповядайте да Ви го покажем. Използвайки нашите услуги Вие ще

превърнете закупуването на новия си дом в едно приятно изживяване, ще

получите персонален консултант, съдействие при кандидатстване за кредит

от всички банки в България, интериорни дизайнери и екип, който да се

погрижи за нужните документи по Вашата сделка. На Ваше разположение сме

всеки ден, от понеделник до неделя от 09:00 до 20:00ч. Възползвайте се

от безплатна консултация в наш офис, където ще ви спестим време и ще ви

запознаем с всички актуални имоти в България, отговарящи на Вашето

търсене. Свържете се с нас на 08******90 или на 08******83 и цитирайте

кода към имота: 475 – 16817

Детайли

Обновено на януари 1, 1970 в 12:00 am
  • Цена: 193,070€
  • Квадратура: 127 кв.м
  • Стаи: 2
  • Година на строителство: 2025
  • Тип на имота: Апартамент
  • Операция: За продажба

Допълнителни детайли

  • Строителство: Тухла
  • Етаж: 4-ти
  • Брой етажи на сградата: 6
  • Отопление: Електричество
  • Обзавеждане: Необзаведен
  • Състояние на сградата: В строеж
  • Преход: Без преход
  • Град Китен
  • Област Област Бургас
  • Държава България

0 Отзив

Sort by:
Leave a Review

    Leave a Review

    Compare listings

    Сравняване
    Olx Недвижими Имоти
    • Olx Недвижими Имоти