Продава се Двустаен апартамент в Несебър – 48 кв.м за 797 €/кв.м

  • 74,810€
  • 797€/m²
Област Бургас, гр. Несебър
  • Апартамент
  • Тип на имота
  • 48
  • кв.м
  • 2026
  • Година на строителство

Накратко за имота

  • Апартамент
  • Тип на имота
  • 48
  • кв.м
  • 2026
  • Година на строителство

Описание

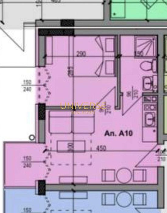
Предлагаме за продажба апартамент 1+1 във висококачествена жилищна сграда с монолитна конструкция, външна изолация, тухла и мазилка (без гипсокартон). Освен това, комплексът е идеален за целогодишно живеене. Апартаментът се състои от коридор, хол и комбинирана баня. Апартаментът се предлага необзаведен и напълно реновиран, с ламиниран паркет, кухненски връзки и климатик, както и напълно оборудвана баня. Морето е само на 200 метра. Завършването на строителството е планирано за юни 2026 г. #5362

Предлагаем к продаже апартамент 1+ 1, в жилом доме с высоким качеством строительства, монолитной конструкцией, внешним утеплением, кирпичом и штукатуркой (без гипсокартона). Кроме того, комплекс идеально подходит для круглогодичного проживания. Апартамент состоит из коридора, гостиной, совмещенного санузла. Квартира сдается без мебели, с ремонтом под ключ: пол-ламинат, выводы под кухню и кондиционеры, полностью оборудованным санузлом, К морю всего 200 м. Сдача дома в эксплуатацию – июнь 2026года. #5362

Детайли

Обновено на януари 1, 1970 в 12:00 am
  • Цена: 74,810€
  • Квадратура: 48 кв.м
  • Стаи: 2
  • Година на строителство: 2026
  • Тип на имота: Апартамент
  • Операция: За продажба

Допълнителни детайли

  • Строителство: Тухла
  • Етаж: 2-ри
  • Брой етажи на сградата: 5
  • Отопление: Електричество
  • Обзавеждане: Необзаведен
  • Състояние на сградата: В строеж
  • Преход: Без преход
  • Град Несебър
  • Област Област Бургас
  • Държава България

0 Отзив

Sort by:
Leave a Review

    Leave a Review

    Compare listings

    Сравняване
    Olx Недвижими Имоти
    • Olx Недвижими Имоти