Продава се Двустаен апартамент в Обзор – 80 кв.м за 1307 €/кв.м

  • 104,500€
  • 1,306€/m²
Област Бургас, гр. Обзор
Продава се Двустаен апартамент в Обзор - 80 кв.м за 1307 €/кв.м - Снимка #4 Продава се Двустаен апартамент в Обзор - 80 кв.м за 1307 €/кв.м - Снимка #5
  • Апартамент
  • Тип на имота
  • 80
  • кв.м
  • 2025
  • Година на строителство

Накратко за имота

  • Апартамент
  • Тип на имота
  • 80
  • кв.м
  • 2025
  • Година на строителство

Описание

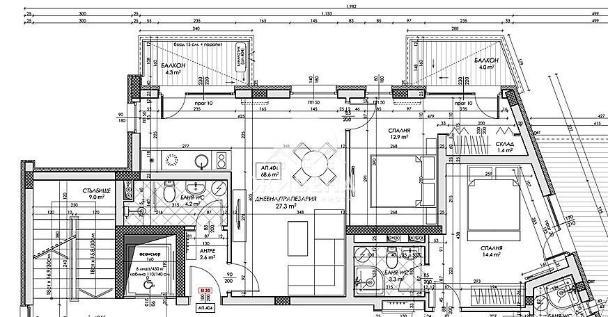
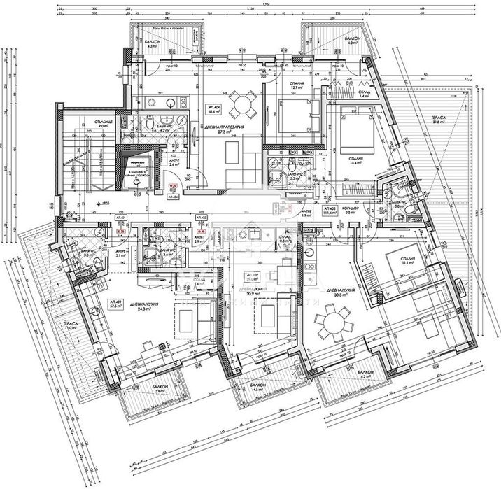
Агенция Живена предлага за продажба 2-стаен апартамент, разположен на 4-ти етаж, в нова сграда, гр. Обзор, близо до плажа. Жилището е с обща площ от 79.61 кв.м, площ без общи части – 69.30 кв.м и се състои от: входно антре, дневна с кухня (27.30 кв.м) с балкон, спалня (12.90 кв.м) със склад и балкон, баня с тоалетна. Апартаментите ще бъдат издадени със следната степен на завършеност „До ключ“, готови за обзавеждане: входна врата; подове: в дневна и коридор – на гранитогрес, спални – ламиниран паркет, стени и тавани: бял латекс, бани/WC: теракота на пода, фаянс по стените, моноблок, мивка със смесител и шкаф с огледало над нея, душ смесител, бойлер (80 л.), поставки за сапун и тоалетна хартия, стенни закачалки, вентилатор, напълно изградена ел. инсталация с контакти, ключове, осветителни тела, окабеляване за интернет и телевизия, напълно изградена ВиК инсталация (в кухните „на тапи“), балкон с мразоустойчив гранитогрес и парапет, климатик в дневните, интериорни врати. Към апартамента може да закупите дворно паркомясто с площ от 35 кв.м на цена от 3500 евро. Очаква се да бъде завършено до октомври 2025 г. Годишна такса-поддръжка – 5 евро на кв.м от общата площ на апартамента. Договор за поддръжка за срок от 5 год. се сключва при прехвърляне правото на собственост върху имота с НА. Агенция ЖИВЕНА извършва необходимите проверки на имота и организира всички етапи на сделката до нейното финализиране. Оказваме съдействие за отпускане на банков кредит. Оферта № 5586

Детайли

Обновено на януари 1, 1970 в 12:00 am
  • Цена: 104,500€
  • Квадратура: 80 кв.м
  • Стаи: 2
  • Година на строителство: 2025
  • Тип на имота: Апартамент
  • Операция: За продажба

Допълнителни детайли

  • Строителство: Тухла
  • Етаж: 4-ти
  • Брой етажи на сградата: 6
  • Отопление: Електричество
  • Обзавеждане: Необзаведен
  • Състояние на сградата: Завършена
  • Преход: С преход
  • Град Обзор
  • Област Област Бургас
  • Държава България

0 Отзив

Sort by:
Leave a Review

    Leave a Review

    Compare listings

    Сравняване
    Olx Недвижими Имоти
    • Olx Недвижими Имоти