Продава се Двустаен апартамент в Пловдив, Беломорски – 49 кв.м за 1596 €/кв.м

  • 78,200€
  • 1,596€/m²
Област Пловдив, гр. Пловдив, Беломорски
  • Апартамент
  • Тип на имота
  • 49
  • кв.м
  • 2028
  • Година на строителство
За продажба Агенция
Област Пловдив, гр. Пловдив, Беломорски
  • 78,200€
  • 1,596€/m²

Накратко за имота

  • Апартамент
  • Тип на имота
  • 49
  • кв.м
  • 2028
  • Година на строителство

Описание

Компания „X“ представя на Вашето внимание двустаен апартамент в Беломорски.

МЕСТОПОЛОЖЕНИЕ: Беломорски е квартал на Пловдив, разположен в южната част на града. Той е един от по-новите и бързоразвиващи се жилищни райони, предлагащ комбинация от съвременна инфраструктура и удобства в близост до природата. Кварталът е добре свързан с останалата част на града чрез автобусни линии и основни пътища. В Беломорски се изграждат много нови жилищни комплекси и модерни сгради, които предлагат удобства. Жилищата в района са разнообразни, като се предлагат както апартаменти, така и къщи.

СТРОИТЕЛСТВО: Апартаментът се намира на 1-ви етаж в четириетажна сграда, ново строителство.

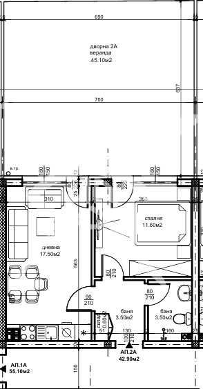
РАЗПРЕДЕЛЕНИЕ: Жилището разполага с площ от 49 кв.м. разпределена по следния начин: входно антре, коридор, дневна с трапезария и кухненски бокс, спалня,баня с тоалетна , склад и дворна веранда, която е 45,10 кв.м.

Заповядайте да Ви го покажем. Използвайки нашите услуги Вие ще превърнете закупуването на новия си дом в едно приятно изживяване, ще получите персонален консултант, съдействие при кандидатстване за кредит от всички банки в България, интериорни дизайнери и екип, който да се погрижи за нужните документи по Вашата сделка. На Ваше разположение сме всеки ден, от понеделник до неделя от 09:00 до 20:00ч. Възползвайте се от безплатна консултация в наш офис, където ще ви спестим време и ще ви запознаем с всички актуални имоти в България, отговарящи на Вашето търсене. Свържете се с нас на 08******90 или на 08******90 и цитирайте кода към имота: 1155-33624

Детайли

Обновено на януари 1, 1970 в 12:00 am
  • Цена: 78,200€
  • Квадратура: 49 кв.м
  • Стаи: 2
  • Година на строителство: 2028
  • Тип на имота: Апартамент
  • Операция: За продажба

Допълнителни детайли

  • Строителство: Тухла
  • Етаж: 1-ви
  • Брой етажи на сградата: 4
  • Отопление: Електричество
  • Обзавеждане: Необзаведен
  • Състояние на сградата: В строеж
  • Преход: Без преход
  • Град Пловдив
  • Област Област Пловдив
  • Квартал Беломорски
  • Държава България

0 Отзив

Sort by:
Leave a Review

    Leave a Review

    Compare listings

    Сравняване
    Olx Недвижими Имоти
    • Olx Недвижими Имоти