Продава се Двустаен апартамент в Пловдив, Беломорски – 66 кв.м за 1273 €/кв.м

  • 84,000€
  • 1,273€/m²
Област Пловдив, гр. Пловдив, Беломорски
  • Апартамент
  • Тип на имота
  • 66
  • кв.м
  • 2026
  • Година на строителство
За продажба Агенция
Област Пловдив, гр. Пловдив, Беломорски
  • 84,000€
  • 1,273€/m²

Накратко за имота

  • Апартамент
  • Тип на имота
  • 66
  • кв.м
  • 2026
  • Година на строителство

Описание

Компания `Х` представя на Вашето внимание двустаен апартамент в Беломорски!

МЕСТОПОЛОЖЕНИЕ:Квартал Беломорски в Пловдив се утвърждава като една от най-перспективните зони за жилищно строителство и покупка на апартамент. Разположен в южната част на града, районът предлага спокойна жилищна среда, ниско застрояване и усещане за пространство и тишина, в съчетание с близост до центъра и други ключови квартали.

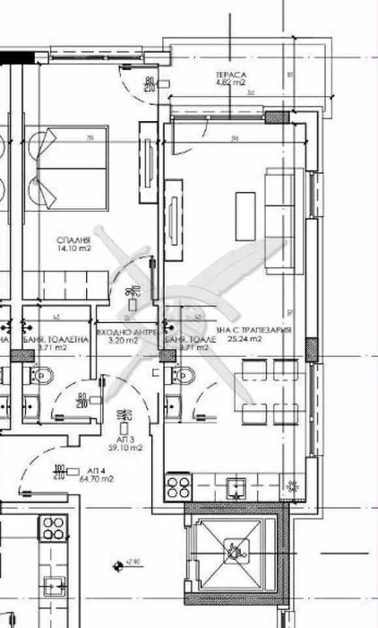
РАЗПРЕДЕЛЕНИЕ:Разполага с площ от 66 кв.м. разгърната в следното функционално разпределение:входно антре,дневна с трапезария,спалня,баня с тоалетна,тераса.

СЪСТОЯНИЕ:Жилището се предлага необзаведено!Предоставя възможност на бъдещите собственици да изградят своя дом с личен вкус и стил!

Заповядайте да Ви го покажем. Използвайки нашите услуги Вие ще превърнете закупуването на новия си дом в едно приятно изживяване, ще получите персонален консултант, съдействие при кандидатстване за кредит от всички банки в България, интериорни дизайнери и екип, който да се погрижи за нужните документи по Вашата сделка. На Ваше разположение сме всеки ден, от понеделник до неделя от 09:00 до 20:00ч. Възползвайте се от безплатна консултация в наш офис, където ще ви спестим време и ще ви запознаем с всички актуални имоти в България, отговарящи на Вашето търсене. Свържете се с нас на 08******90 или на 08******90 и цитирайте кода към имота: 89850

Детайли

Обновено на януари 1, 1970 в 12:00 am
  • Цена: 84,000€
  • Квадратура: 66 кв.м
  • Стаи: 2
  • Година на строителство: 2026
  • Тип на имота: Апартамент
  • Операция: За продажба

Допълнителни детайли

  • Строителство: Тухла
  • Етаж: 2-ри
  • Брой етажи на сградата: 4
  • Отопление: Електричество
  • Обзавеждане: Необзаведен
  • Състояние на сградата: В строеж
  • Преход: Без преход
  • Град Пловдив
  • Област Област Пловдив
  • Квартал Беломорски
  • Държава България

0 Отзив

Sort by:
Leave a Review

    Leave a Review

    Compare listings

    Сравняване
    Olx Недвижими Имоти
    • Olx Недвижими Имоти