Стилен и уютен двустаен апартамент в сърцето на Пловдив. Апартаментът е разположен на трети етаж в луксозна сграда с общо 7 етажа и е подходящ както за лично ползване, така и за инвестиция. Има възможността да се преустрои в тристаен. Добра доходност за отдаване под наем.
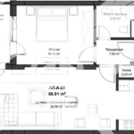
Апартаментът се отличава с модерни довършителни работи, висококачествени материали и внимателно подбрани мебели. Разпределението включва просторна дневна с кухненски бокс, спалня, баня с WC и отделно тоалетна, балкон с прекрасен изглед към града.
Предимства:
Луксозно изпълнение и съвременен дизайн.
Изключително тих и спокоен район в сърцето на града.
Отлична инфраструктура и лесен достъп до ключови локации.
Апартаментът е готов за нанасяне и не изисква допълнителни ремонти.
За повече информация, звъннете на посочения телефон.
Compare listings
Сравняване