Продава се Двустаен апартамент в Пловдив, Христо Смирненски – 60 кв.м за 826 €/кв.м

  • 49,536€
  • 826€/m²
Област Пловдив, гр. Пловдив, Христо Смирненски
  • Апартамент
  • Тип на имота
  • 60
  • кв.м
  • 2025
  • Година на строителство
За продажба Агенция
Област Пловдив, гр. Пловдив, Христо Смирненски
  • 49,536€
  • 826€/m²

Накратко за имота

  • Апартамент
  • Тип на имота
  • 60
  • кв.м
  • 2025
  • Година на строителство

Описание

При интерес за това и още много други предложения, не се колебайте да се обадите на посочения номер!

Детайли

Обновено на януари 1, 1970 в 12:00 am
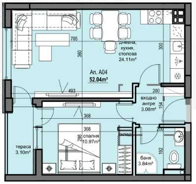
  • Цена: 49,536€
  • Квадратура: 60 кв.м
  • Стаи: 2
  • Година на строителство: 2025
  • Тип на имота: Апартамент
  • Операция: За продажба

Допълнителни детайли

  • Строителство: Тухла
  • Етаж: 2-ри
  • Брой етажи на сградата: 4
  • Отопление: Електричество
  • Обзавеждане: Необзаведен
  • Състояние на сградата: В строеж
  • Преход: С преход
  • Град Пловдив
  • Област Област Пловдив
  • Квартал Христо Смирненски
  • Държава България

0 Отзив

Sort by:
Leave a Review

    Leave a Review

    Compare listings

    Сравняване
    Olx Недвижими Имоти
    • Olx Недвижими Имоти