Продава се Двустаен апартамент в Пловдив, Христо Смирненски – 62 кв.м за 1002 €/кв.м

  • 62,090€
  • 1,001€/m²
Област Пловдив, гр. Пловдив, Христо Смирненски
  • Апартамент
  • Тип на имота
  • 62
  • кв.м
  • 2025
  • Година на строителство
За продажба Агенция
Област Пловдив, гр. Пловдив, Христо Смирненски
  • 62,090€
  • 1,001€/m²

Накратко за имота

  • Апартамент
  • Тип на имота
  • 62
  • кв.м
  • 2025
  • Година на строителство

Описание

Компания ’X’ представя на Вашето внимание двустаен апартамент в кв. Христо Смирненски.

МЕСТОПОЛОЖЕНИЕ: Квартал Христо Смирненски е един от големите жилищни квартали в град Пловдив. Христо Смирненски е живописен и разнообразен квартал, който предлага удобства за живот и развлечения на своите жители.

СТРОИТЕЛСТВО: Апартаментът е разположен на 1-ви етаж в сграда ново строителство.

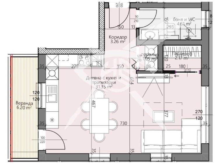
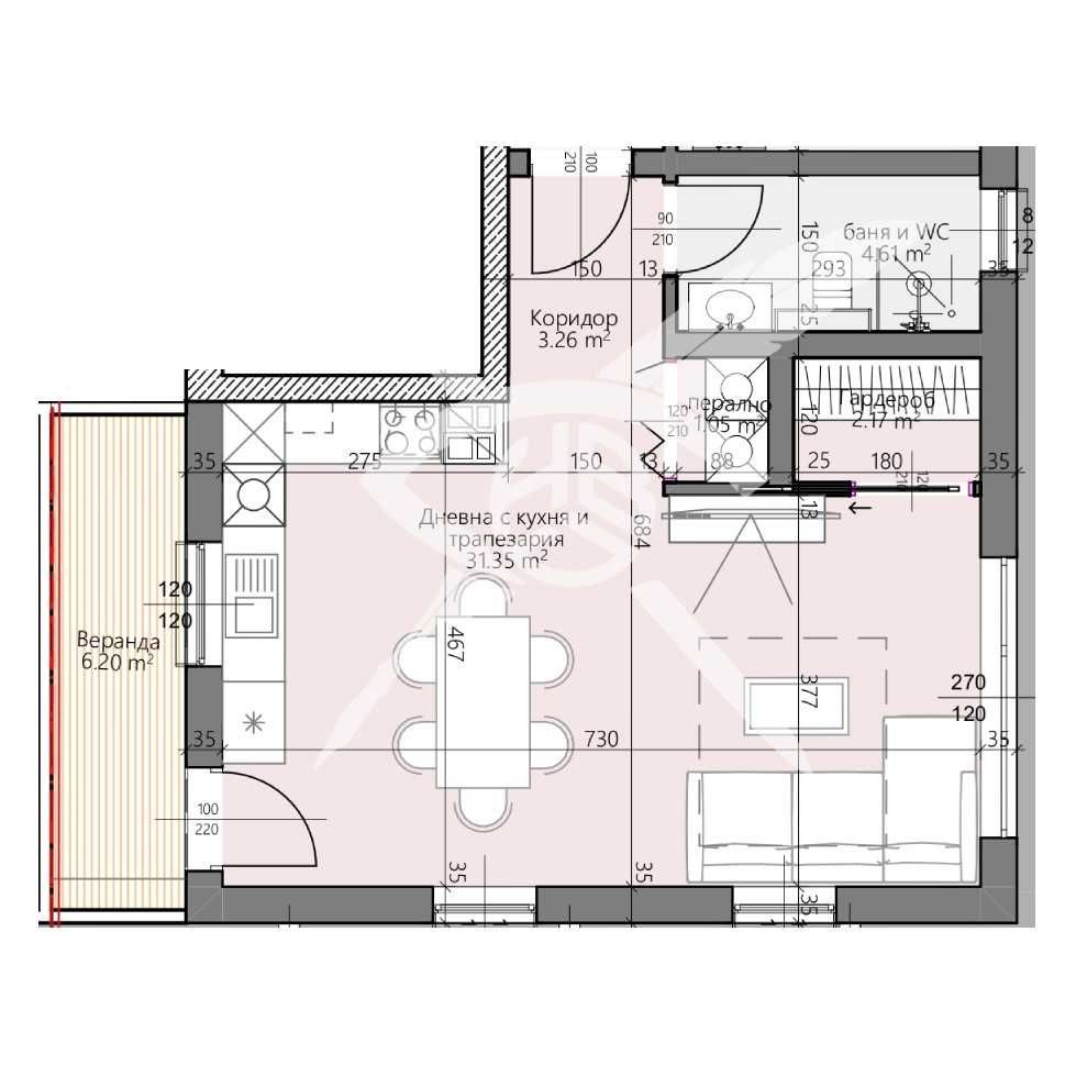
РАЗПРЕДЕЛЕНИЕ: Жилището разполага с площ от 62 кв.м., която е разпределена по следния начин: коридор, дневна с кухня и трапезария, спалня, гардеробно помещение баня с тоалетна, перално помешение и веранда, която е 40,21 кв.м.

СЪСТОЯНИЕ: Необзаведен.

Заповядайте да Ви го покажем. Използвайки нашите услуги Вие ще превърнете закупуването на новия си дом в едно приятно изживяване, ще получите персонален консултант, съдействие при кандидатстване за кредит от всички банки в България, интериорни дизайнери и екип, който да се погрижи за нужните документи по Вашата сделка. На Ваше разположение сме всеки ден, от понеделник до неделя от 09:00 до 20:00ч. Възползвайте се от безплатна консултация в наш офис, където ще ви спестим време и ще ви запознаем с всички актуални имоти в България, отговарящи на Вашето търсене. Свържете се с нас на 08*********90 или на 08*********90 и цитирайте кода към имота: 382-24537

Детайли

Обновено на януари 1, 1970 в 12:00 am
  • Цена: 62,090€
  • Квадратура: 62 кв.м
  • Стаи: 2
  • Година на строителство: 2025
  • Тип на имота: Апартамент
  • Операция: За продажба

Допълнителни детайли

  • Строителство: Тухла
  • Етаж: 1-ви
  • Брой етажи на сградата: 5
  • Отопление: Електричество
  • Обзавеждане: Необзаведен
  • Състояние на сградата: В строеж
  • Преход: Без преход
  • Град Пловдив
  • Област Област Пловдив
  • Квартал Христо Смирненски
  • Държава България

0 Отзив

Sort by:
Leave a Review

    Leave a Review

    Compare listings

    Сравняване
    Olx Недвижими Имоти
    • Olx Недвижими Имоти