Продава се Двустаен апартамент в Пловдив, Христо Смирненски – 68 кв.м за 1207 €/кв.м

  • 82,068€
  • 1,207€/m²
Област Пловдив, гр. Пловдив, Христо Смирненски
  • Апартамент
  • Тип на имота
  • 68
  • кв.м
  • 2023
  • Година на строителство
За продажба Агенция
Област Пловдив, гр. Пловдив, Христо Смирненски
  • 82,068€
  • 1,207€/m²

Накратко за имота

  • Апартамент
  • Тип на имота
  • 68
  • кв.м
  • 2023
  • Година на строителство

Описание

Компания Х представя на Вашето внимание двустаен апартамент в кв.Христо Смирненски.

МЕСТОПОЛОЖЕНИЕ: Христо Смирненски е един от живописните квартали в град Пловдив.Той е разположен в източната част на града.Животът там е спокоен и уютен, подходящ за семейства и хора, които търсят комфорт и удобство.Кварталът е добре свързан с другите части на града чрез обществен транспорт и пътища, което улеснява движението на жителите му до различни дестинации в града и извън него.

СТРОИТЕЛСТВО: Разположен на 5-ти етаж в сграда с модерен дизайн, построена през 2023 година. Апартаментът впечатлява със светлина и пространство с панорамни гледки.

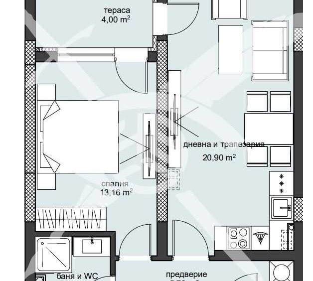
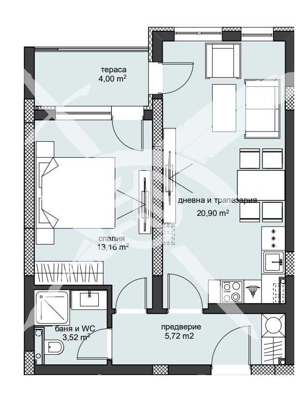
РАЗПРЕДЕЛЕНИЕ: Жилището разполага с площ от 68 кв.м., състои се от кухненски бокс с хол, спалня, баня с тоалетна, тераса.

СЪСТОЯНИЕ: Жилището се предлага на шпакловка и замазка, което дава възможност на новите собственици да създадат своя нов ДОМ, придавайки му индивидуалност и стил.

Заповядайте да Ви го покажем. Използвайки нашите услуги Вие ще превърнете закупуването на новия си дом в едно приятно изживяване, ще получите персонален консултант, съдействие при кандидатстване за кредит от всички банки в България, интериорни дизайнери и екип, който да се погрижи за нужните документи по Вашата сделка. На Ваше разположение сме всеки ден, от понеделник до неделя от 09:00 до 20:00ч. Възползвайте се от безплатна консултация в наш офис, където ще ви спестим време и ще ви запознаем с всички актуални имоти в България, отговарящи на Вашето търсене. Свържете се с нас на 088777990 или на 08******90 и цитирайте кода към имота: 195-19450

Детайли

Обновено на януари 1, 1970 в 12:00 am
  • Цена: 82,068€
  • Квадратура: 68 кв.м
  • Стаи: 2
  • Година на строителство: 2023
  • Тип на имота: Апартамент
  • Операция: За продажба

Допълнителни детайли

  • Строителство: Тухла
  • Етаж: 5-ти
  • Брой етажи на сградата: 11
  • Отопление: Електричество
  • Обзавеждане: Необзаведен
  • Състояние на сградата: В строеж
  • Преход: Без преход

Особености

  • Град Пловдив
  • Област Област Пловдив
  • Квартал Христо Смирненски
  • Държава България

0 Отзив

Sort by:
Leave a Review

    Leave a Review

    Compare listings

    Сравняване
    Olx Недвижими Имоти
    • Olx Недвижими Имоти