ОФЕРТА 00195
Предлагаме за продажба двустаен апартамент в предпочитан район – ОСТРОМИЛА без комисионна от купувача. Апартаментът е разположен в нова сграда с предстоящ АКТ 16 през пролетта на 2025 година. Сградата е строена от доказан инвеститор, гарантирайки високо качество на строителството.
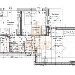
Жилището разполага с практично разпределение: хол с кухненски бокс, спалня, баня с тоалетна и тераса. Апартаментът е с площ от 70 кв.м. и се намира на първи етаж.
Идеален за инвестиция или за лично ползване. Цена: 84 000 евро.
Не пропускайте възможността да закупите имот в един от най-предпочитаните и перспективни райони на града!
Compare listings
Сравняване