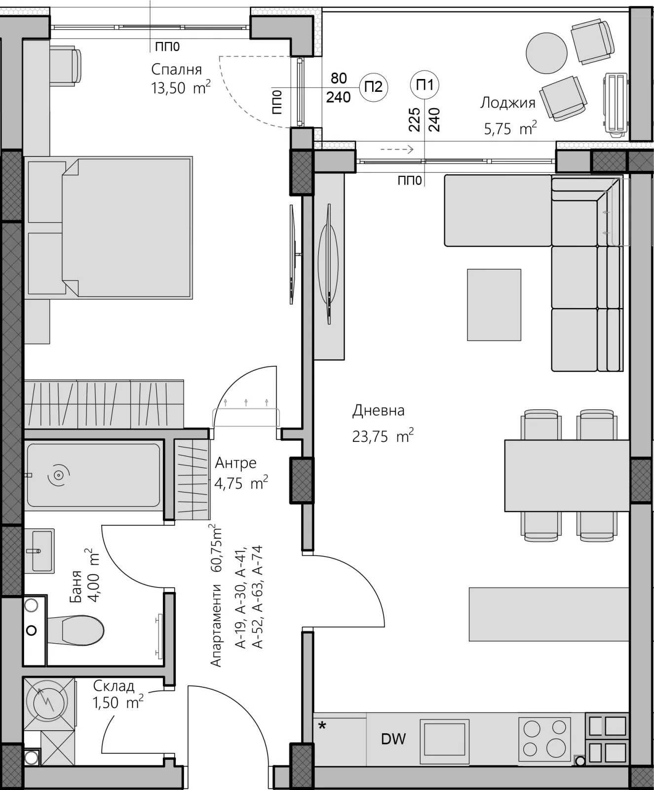
Представяме Ви двустаен апартамент ново строителство в Христо Смирненски! 1283-36219
Compare listings
Please enter your username or email address. You will receive a link to create a new password via email.