Реф. номер: 2615
ТОП ЛОКАЦИЯ В БЛИЗОСТ ДО УЛ. РАЯ! ВИСОКОКАЧЕСТВЕНО СТРОИТЕЛСТВО! УТВЪРДЕН ИНВЕСТИТОР!
Предлагаме ви двустаен апартамент в новострояща се луксозна жилищна сграда в кв. Христо Смирненски!
Основни характеристики на имота:
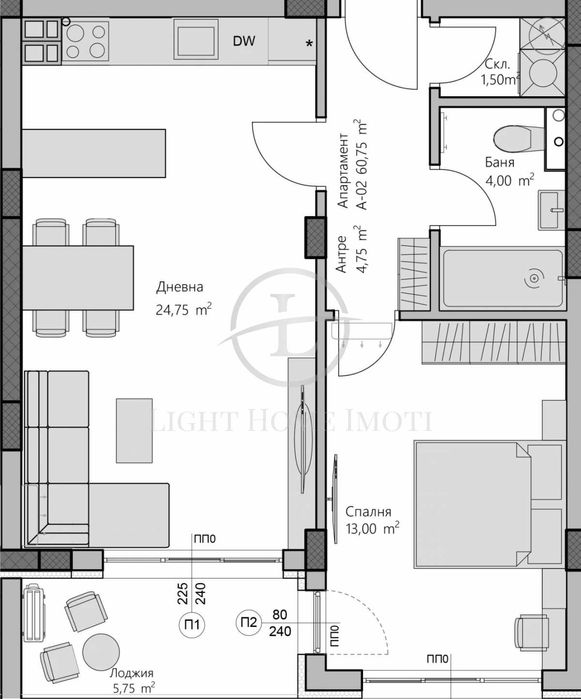
– Площ: 71.89 кв.м
– Разпределение: Хол с кухненски бокс, спалня, баня с тоалетна, склад, антре и тераса
– Вид строителство: Тухла (ново строителство)
– Изложение: Югоизток
– Етажност: 2 ет. от 10 ет. (асансьор)
– Паркиране: Възможност за закупуване на гараж, подземни и надземни паркоместа
Налични са двустайни, тристайни и четиристайни апартаменти!
Проектът се обобщава с модерна жилищна концепция, която обединява уют, стил и практичност в сърцето на кв. Христо Смирненски. Двете сгради са внимателно проектирани с акцент върху всеки детайл, осигурявайки хармонично съчетание между градската динамика и домашния уют. Всяко жилище е планирано така, че да предлага максимална светлина, простор и функционалност – с усещане за класа и комфорт.
За повече информация и организиране на огледи, моля, свържете се с нас на посочения номер, като ще Ви е необходим следният референтен номер: 2615
Лайт Хоум имоти е доверен партньор на най-големите банкови институции в страната и съдейства за преференциални условия при нужда от кредитиране. Ще получите юридическо съдействие през целия процес на сделката, както и съдействие при подготовка, подаване и получаване на всички необходими документи за сделката.
Compare listings
Сравняване