Продава се Двустаен апартамент в Пловдив, Христо Смирненски – 78 кв.м за 1270 €/кв.м

  • 99,000€
  • 1,269€/m²
Област Пловдив, гр. Пловдив, Христо Смирненски
  • Апартамент
  • Тип на имота
  • 78
  • кв.м
  • 2023
  • Година на строителство
За продажба Агенция
Област Пловдив, гр. Пловдив, Христо Смирненски
  • 99,000€
  • 1,269€/m²

Накратко за имота

  • Апартамент
  • Тип на имота
  • 78
  • кв.м
  • 2023
  • Година на строителство

Описание

Компания X представя на Вашето внимание двустаен апартамент в кв. Христо Смирненски.

МЕСТОПОЛОЖЕНИЕ: В близост до магазини за хранителни стоки, спирка на градски транспорт, основни пътни артерии. В квартала се намират няколко училища и детски градини, както и читалища и културни центрове, които предлагат разнообразни дейности и програми за жителите. Като цяло, Христо Смирненски е привлекателен квартал за живеене, предлагащ удобства, които създават комфортна и спокойна среда за жителите си

СТРОИТЕЛСТВО: Апартаментът се намира на 6 етаж в тухлена сграда.

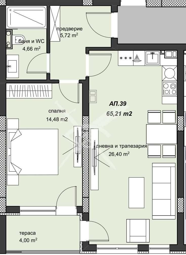
РАЗПРЕДЕЛЕНИЕ: Жилището разполага с площ от 78 кв.м. разпределена в коридор, хол с кухня, спалня, баня и тоалетна и тераса.

СЪСТОЯНИЕ: В строеж.

Заповядайте да Ви го покажем. Използвайки нашите услуги Вие ще превърнете закупуването на новия си дом в едно приятно изживяване, ще получите персонален консултант, съдействие при кандидатстване за кредит от всички банки в България, интериорни дизайнери и екип, който да се погрижи за нужните документи по Вашата сделка. На Ваше разположение сме всеки ден, от понеделник до неделя от 09:00 до 20:00ч. Възползвайте се от безплатна консултация в наш офис, където ще ви спестим време и ще ви запознаем с всички актуални имоти в България, отговарящи на Вашето търсене. Свържете се с нас на 08*********90 или на 08*********90 и цитирайте кода към имота: 65295

Детайли

Обновено на януари 1, 1970 в 12:00 am
  • Цена: 99,000€
  • Квадратура: 78 кв.м
  • Стаи: 2
  • Година на строителство: 2023
  • Тип на имота: Апартамент
  • Операция: За продажба

Допълнителни детайли

  • Строителство: Тухла
  • Етаж: 6-ти
  • Брой етажи на сградата: 13
  • Отопление: Електричество
  • Обзавеждане: Необзаведен
  • Състояние на сградата: Завършена
  • Преход: Без преход
  • Град Пловдив
  • Област Област Пловдив
  • Квартал Христо Смирненски
  • Държава България

0 Отзив

Sort by:
Leave a Review

    Leave a Review

    Compare listings

    Сравняване
    Olx Недвижими Имоти
    • Olx Недвижими Имоти