Продава се Двустаен апартамент в Пловдив, Христо Смирненски – 95 кв.м за 1295 €/кв.м

  • 123,000€
  • 1,295€/m²
Област Пловдив, гр. Пловдив, Христо Смирненски
  • Апартамент
  • Тип на имота
  • 95
  • кв.м
  • 2025
  • Година на строителство
За продажба Агенция
Област Пловдив, гр. Пловдив, Христо Смирненски
  • 123,000€
  • 1,295€/m²

Накратко за имота

  • Апартамент
  • Тип на имота
  • 95
  • кв.м
  • 2025
  • Година на строителство

Описание

Компания X представя на Вашето внимание двустаен апартамент в кв. Христо Смирненски.

МЕСТОПОЛОЖЕНИЕ: Квартал Христо Смирненски е един от големите жилищни квартали в град Пловдив. Христо Смирненски е живописен и разнообразен квартал, който предлага удобства за живот и развлечения на своите жители.

СТРОИТЕЛСТВО: Апартаментът е разположен на 2-ри етаж в сграда ново строителство.

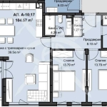
РАЗПРЕДЕЛЕНИЕ: Жилището разполага с площ от 95кв.м., която е разпределена по следния начин: предверие, дневна с трапезария и кухня, спалня, баня с тоалетна, килер и балкон.

СЪСТОЯНИЕ: Необзаведен.

СХЕМА НА ПЛАЩАНЕ:

20% – На предварителен договор

80% – Акт 16

има и други варианти на схемата

Заповядайте да Ви го покажем. Използвайки нашите услуги Вие ще превърнете закупуването на новия си дом в едно приятно изживяване, ще получите персонален консултант, съдействие при кандидатстване за кредит от всички банки в България, интериорни дизайнери и екип, който да се погрижи за нужните документи по Вашата сделка. На Ваше разположение сме всеки ден, от понеделник до неделя от 09:00 до 20:00ч. Възползвайте се от безплатна консултация в наш офис, където ще ви спестим време и ще ви запознаем с всички актуални имоти в България, отговарящи на Вашето търсене. Свържете се с нас и цитирайте кода към имота: 804-23794

Детайли

Обновено на януари 1, 1970 в 12:00 am
  • Цена: 123,000€
  • Квадратура: 95 кв.м
  • Стаи: 2
  • Година на строителство: 2025
  • Тип на имота: Апартамент
  • Операция: За продажба

Допълнителни детайли

  • Строителство: Тухла
  • Етаж: 2-ри
  • Брой етажи на сградата: 10
  • Отопление: Електричество
  • Обзавеждане: Необзаведен
  • Състояние на сградата: В строеж
  • Преход: Без преход
  • Град Пловдив
  • Област Област Пловдив
  • Квартал Христо Смирненски
  • Държава България

0 Отзив

Sort by:
Leave a Review

    Leave a Review

    Compare listings

    Сравняване
    Olx Недвижими Имоти
    • Olx Недвижими Имоти