Титан Пропъртис представя на Вашето внимание двустаен апартамент в новострояща се сграда в кв. Коматево.
В близост са разположени търговски обекти, детски градини, ресторанти и спирки на градски транспорт.
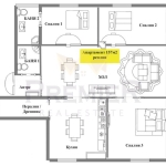
Апартаментът е ситуиран на 2-ри от 5-ти жилищен етаж и разполага със застроена площ от 62.61 кв.м., разгърната в следното практично разпределение: входно антре, дневна с кухненски бокс, спалня, баня с тоалетна, две тераси.
Сградата е само с 11 апартамента и е в начален етап на строеж, очаква се 2027г. да бъде завършена. Има възможност за закупуване на надземно или подземно паркомясто. Отопление: електричество.
За оглед на това и други атрактивни предложения, не се колебайте да ни потърсите на посочения телефон или да ни изпратите данните си чрез формата за запитване на сайта. Реф. номер: 1168.
Compare listings
Сравняване