Продава се Двустаен апартамент в Пловдив, Кършияка – 106 кв.м за 1708 €/кв.м

  • 180,999€
  • 1,708€/m²
Област Пловдив, гр. Пловдив, Кършияка
  • Апартамент
  • Тип на имота
  • 106
  • кв.м
  • 2024
  • Година на строителство
За продажба Агенция
Област Пловдив, гр. Пловдив, Кършияка
  • 180,999€
  • 1,708€/m²

Накратко за имота

  • Апартамент
  • Тип на имота
  • 106
  • кв.м
  • 2024
  • Година на строителство

Описание

Компания X представя на Вашето внимание тристаен апартамент в кв.Кършияка.

МЕСТОПОЛОЖЕНИЕ:Кварталът предлага разнообразие от жилищни сгради, както и търговски обекти и услуги, които удовлетворяват нуждите на местните жители. В близост до Кършияка се намират и значими исторически и културни забележителности на града, което го прави атрактивно място за живеене и посещение.

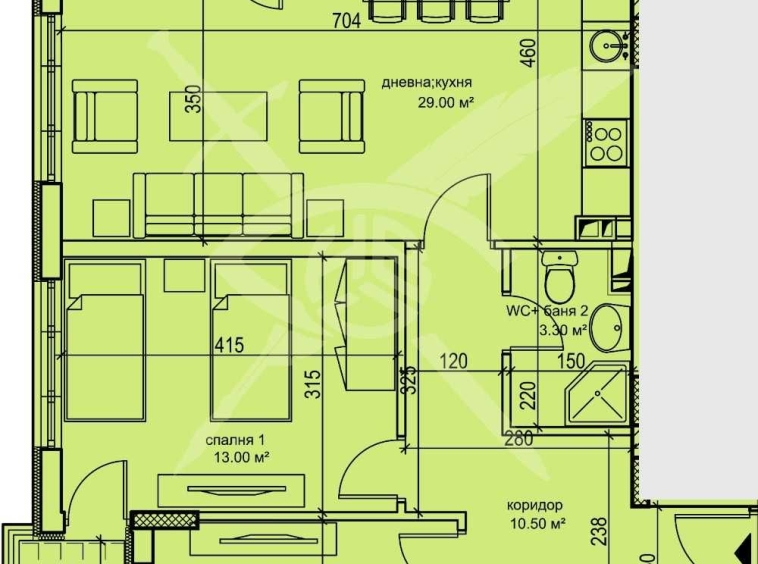
СТРОИТЕЛСТВО: Апартаментът се намира на 12 етаж , тухла.

РАЗПРЕДЕЛЕНИЕ: Жилището разполага с площ от 106 кв.м. разпределена в дневна с трапезария и кухненски бокс, спалня , баня с тоалетна, тераса.

СЪСТОЯНИЕ: В строеж.

Заповядайте да Ви го покажем. Използвайки нашите услуги Вие ще превърнете закупуването на новия си дом в едно приятно изживяване, ще получите персонален консултант, съдействие при кандидатстване за кредит от всички банки в България, интериорни дизайнери и екип, който да се погрижи за нужните документи по Вашата сделка. На Ваше разположение сме всеки ден, от понеделник до неделя от 09:00 до 20:00ч. Възползвайте се от безплатна консултация в наш офис, където ще ви спестим време и ще ви запознаем с всички актуални имоти в България, отговарящи на Вашето търсене. Свържете се с нас на 08******90 /на цената на един градски разговор/ или на 08******90 и цитирайте кода към имота:204-19743

Детайли

Обновено на януари 1, 1970 в 12:00 am
  • Цена: 180,999€
  • Квадратура: 106 кв.м
  • Стаи: 2
  • Година на строителство: 2024
  • Тип на имота: Апартамент
  • Операция: За продажба

Допълнителни детайли

  • Строителство: Тухла
  • Етаж: 12-ти
  • Брой етажи на сградата: 13
  • Отопление: Електричество
  • Обзавеждане: Необзаведен
  • Състояние на сградата: В строеж
  • Преход: Без преход

Особености

  • Град Пловдив
  • Област Област Пловдив
  • Квартал Кършияка
  • Държава България

0 Отзив

Sort by:
Leave a Review

    Leave a Review

    Compare listings

    Сравняване
    Olx Недвижими Имоти
    • Olx Недвижими Имоти