Компания X представя на Вашето внимание двустаен апартамент в кв.Кършияка.
МЕСТОПОЛОЖЕНИЕ:Кършияка е един от най-старите квартали в град Пловдив, България. Той се намира в централната част на града и е известен със своята историческа атмосфера, архитектурни паметници и културни забележителности.
СТРОИТЕЛСТВО: Апартаментът се намира на 1 етаж , тухла.
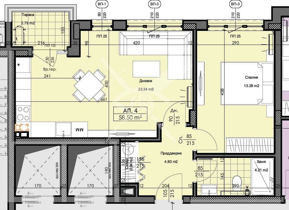
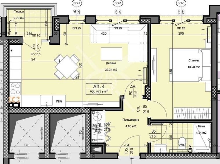
РАЗПРЕДЕЛЕНИЕ: Жилището разполага с площ от 69 кв.м. дневна,кухня, спалня, баня и тоалетна,тераса,склад.
СЪСТОЯНИЕ: В строеж.
Заповядайте да Ви го покажем. Използвайки нашите услуги Вие ще превърнете закупуването на новия си дом в едно приятно изживяване, ще получите персонален консултант, съдействие при кандидатстване за кредит от всички банки в България, интериорни дизайнери и екип, който да се погрижи за нужните документи по Вашата сделка. На Ваше разположение сме всеки ден, от понеделник до неделя от 09:00 до 20:00ч. Възползвайте се от безплатна консултация в наш офис, където ще ви спестим време и ще ви запознаем с всички актуални имоти в България, отговарящи на Вашето търсене. Свържете се с нас на 08******90 /на цената на един градски разговор/ или на 08******90 и цитирайте кода към имота:629-20267
Compare listings
Сравняване