Реф. номер: 2474
ПРОСТОРЕН ДВУСТАЕН АПАРТАМЕНТ С АКТ 14
Предлагаме Ви да закупите просторен двустаен апартамент на тиха и предпочитана локация
Основни характеристики:
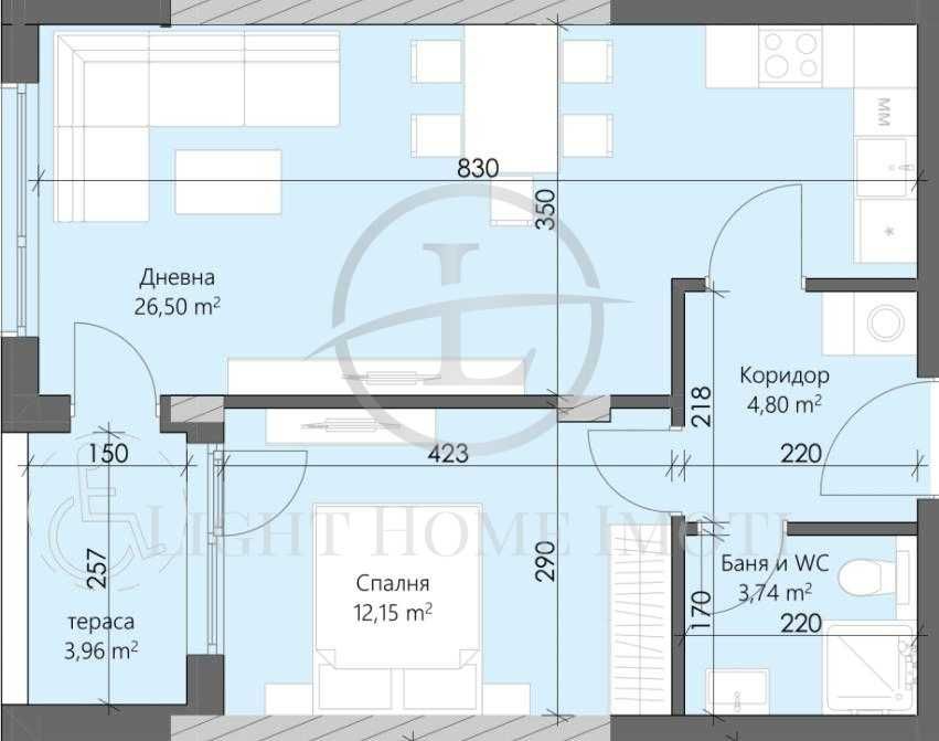
-Площ- 74кв.м.
-Разпределение- Просторен хол с кухненски бокс, голяма спалня, баня с тоалетна, входно антре, тераса и прилежащо складово помещение.
-Етажност- 2ри етаж от 6 (асансьор)
-Изложение- Запад
-Вид строителство- тухла 2026г
-Паркиране- Възможност за закупуване на паркомясто или гараж
Жилището ще се издава на степен на завършеност шпакловка и замазка, ВиК до тапа и Ел инсталация до ключ. Идеална възможност да го превърнете в мечтаният от вас дом, а поради отличната си локация в близост до университет и училище може да бъде и чудесен инвестиционен имот с цел отдаване под наем.
Локация: Намира се на тиха, но комуникатихна локация с бърза връзка към централната градска част.
За повече информация и организиране на огледи, моля, свържете се с нас на посочения номер, като ще Ви е необходим следният референтен номер: 2472
Лайт Хоум имоти е доверен партньор на най-големите банкови институции в страната и съдейства за преференциални условия при нужда от кредитиране. Ще получите юридическо съдействие през целия процес на сделката, както и съдействие при подготовка, подаване и получаване на всички необходими документи за сделката.
Compare listings
Сравняване