Титан Пропъртис представя на Вашето внимание двустаен апартамент в модерна, новострояща се сграда с впечатляващ дизайн в кв. Kършияка.
В близост са разположени търговски обекти, спирки на градски транспорт,детски градини, училища, хотел ‘Санкт Петербург’.
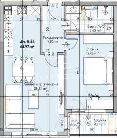
Апартаментът е ситуиран на 9-ти жилищен етаж и разполага със застроена площ от 66 кв.м., разгърната в следното практично разпределение: дневна с трапезария и кухня, спалня, баня с тоалетна, тераса
Отоплението е електричество. Сградата разполага с асансьор. Жилището се продава на шпакловка и замазка, за да може Вашето въображение да го превърне в мечтания за Вас нов ДОМ!
Сградата се очаква да бъде завършена през 2025-та година и предлага възможност за закупуване на едностайни, двустайни,тристайни и четиристайни жилища.
За оглед на това и други атрактивни предложения, не се колебайте да ни потърсите на посочения телефон или да ни изпратите данните си чрез формата за запитване на сайта. Реф. номер:885.
Compare listings
Сравняване