Продава се Двустаен апартамент в Пловдив, Кършияка – 80 кв.м за 1802 €/кв.м

  • 144,144€
  • 1,802€/m²
Област Пловдив, гр. Пловдив, Кършияка
  • Апартамент
  • Тип на имота
  • 80
  • кв.м
  • 2022
  • Година на строителство
За продажба Агенция
Област Пловдив, гр. Пловдив, Кършияка
  • 144,144€
  • 1,802€/m²

Накратко за имота

  • Апартамент
  • Тип на имота
  • 80
  • кв.м
  • 2022
  • Година на строителство

Описание

Номер на оферта: 617251

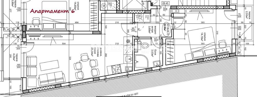
Агенция за недвижими имоти “SEVEN HILLS REAL ESTATE Co” продава двустаен апартамент с обща площ от 80.08 кв.м. и чиста площ от 62.56 кв.м.

Намира се в новопостроена сграда с АКТ 16 в кв. Кършияка, в близост до Гранд Хотел Пловдив. Апартаментът е разположен на етаж три от общо шест. Разпределение: всекидневна с кухненски бокс (25.34 кв.м.), спалня (14.18 кв.м.), баня с тоалетна (3.63 кв.м.), входно антре (3.69 кв.м.) и две тераси (4.24 кв.м. и 2.53 кв.м.). Към жилището има и прилежащо избено помещение.

Има възможност за закупуване на паркомясто към жилището на цена от 15 000 евро.

Апартаментите се предават в следната степен на завършеност: под – на циментова замазка, стени и тавани – гипсова машинна мазилка, ел. инсталация – до ключ, ВИК инсталация – до тапа, поставена алуминиева дограма, входна блиндирана врата, монтирано апартаментно ел. табло, баня с тоалетна – под – замазка, стени-мазилка, ел. инсталация – до ключ, ВИК инсталация – до тапа, поставени водомери за студена вода.

Общи части на сградата, асансьор и фасада – изпълнени по проект.

За повече информация и огледи се свържете с нас на посочения телефонен номер.

Отговорен брокер:

Самуил Спасов

Детайли

Обновено на януари 1, 1970 в 12:00 am
  • Цена: 144,144€
  • Квадратура: 80 кв.м
  • Стаи: 2
  • Година на строителство: 2022
  • Тип на имота: Апартамент
  • Операция: За продажба

Допълнителни детайли

  • Строителство: Тухла
  • Етаж: 3-ти
  • Брой етажи на сградата: 6
  • Отопление: Електричество
  • Обзавеждане: Необзаведен
  • Състояние на сградата: Завършена
  • Преход: Без преход
  • Град Пловдив
  • Област Област Пловдив
  • Квартал Кършияка
  • Държава България

0 Отзив

Sort by:
Leave a Review

    Leave a Review

    Compare listings

    Сравняване
    Olx Недвижими Имоти
    • Olx Недвижими Имоти