Титан Пропъртис представя на Вашето внимание двустаен апартамент с повече от прекрасна локация, а именно кв. Кършияка. В близост са разположени търговски обекти, спирки на градски транспорт, Новотела, Община Марица.
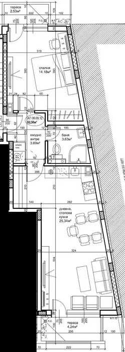
Апартаментът е ситуиран на 2-ри жилищен етаж и разполага със застроена площ от 62.56 кв.м., разгърната по следния практичен начин:входно антре, дневна с кухненски бокс, спалня, баня с тоалетна, две тераси, изба.
Изложение: изток/запад. Отопление: електричество.Жилището се продава на шпакловка и замазка,за да може Вашето въображение да го превърне в мечтания за Вас нов ДОМ!.Сградата е завършена с Акт 16.
За оглед на това и други атрактивни предложения, не се колебайте да ни потърсите на посочения телефон или да ни изпратите данните си чрез формата за запитване на сайта. Реф. номер:52685.
Compare listings
Сравняване