Продава се Двустаен апартамент в Пловдив, Кючук Париж – 74 кв.м за 1460 €/кв.м

  • 108,000€
  • 1,459€/m²
Област Пловдив, гр. Пловдив, Кючук Париж
Продава се Двустаен апартамент в Пловдив, Кючук Париж - 74 кв.м за 1460 €/кв.м - Снимка #4 Продава се Двустаен апартамент в Пловдив, Кючук Париж - 74 кв.м за 1460 €/кв.м - Снимка #5
  • Апартамент
  • Тип на имота
  • 74
  • кв.м
  • 2025
  • Година на строителство
За продажба Агенция
Област Пловдив, гр. Пловдив, Кючук Париж
  • 108,000€
  • 1,459€/m²

Накратко за имота

  • Апартамент
  • Тип на имота
  • 74
  • кв.м
  • 2025
  • Година на строителство

Описание

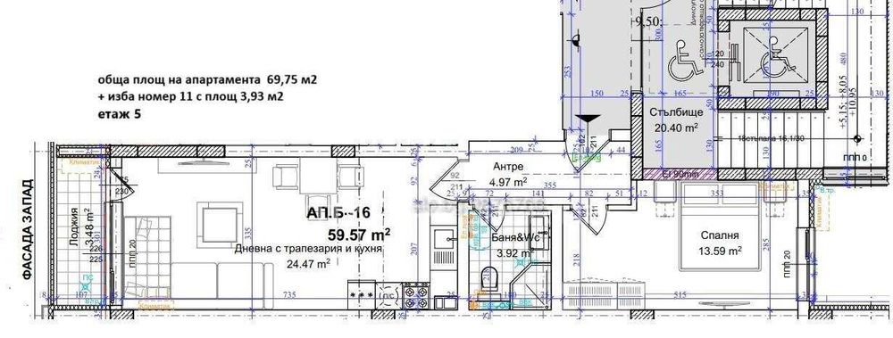
Титан Пропъртис представя на Вашето внимание двустайно жилище, находящо се в ж.к. Кючук Париж. В близост са разположени търговски обекти, спирки на градски транспорт, детски градини, училища, медицински заведения, както и зони за отдих и спорт.

Апартаментът е ситуиран на 5-ти жилищен етаж и разполага със застроена площ от 60 кв.м., разгърната в следното практично разпределение: входо антре,спалня,хол с кухненски бокс,тераса

Изложението е изток/запад. Отопление: електричество.Жилището се продава на шпакловка и замазка за да се превърне в мечтания за Вас нов ДОМ!

За оглед на това и други атрактивни предложения, не се колебайте да ни потърсите на посочения телефон или да ни изпратите данните си чрез формата за запитване на сайта. Реф. номер:61952.

Детайли

Обновено на януари 1, 1970 в 12:00 am
  • Цена: 108,000€
  • Квадратура: 74 кв.м
  • Стаи: 2
  • Година на строителство: 2025
  • Тип на имота: Апартамент
  • Операция: За продажба

Допълнителни детайли

  • Строителство: Тухла
  • Етаж: 5-ти
  • Брой етажи на сградата: 8
  • Отопление: Електричество
  • Обзавеждане: Необзаведен
  • Състояние на сградата: В строеж
  • Преход: Без преход

Особености

  • Град Пловдив
  • Област Област Пловдив
  • Квартал Кючук Париж
  • Държава България

0 Отзив

Sort by:
Leave a Review

    Leave a Review

    Compare listings

    Сравняване
    Olx Недвижими Имоти
    • Olx Недвижими Имоти