Пред Акт 14!
Директно от инвеститора!
Разсрочено плащане!
Промоционална цена 790 евро/кв.м.
Предлагаме Ви двустаен апартамент в кв. Кючук Париж, в близост до магазин Билла на ул. Димитър Талев.
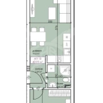
Разпределение:
Дневна с трапезария и кухненски бокс, спалня, баня с wc, лоджия,изба
Изложение Север и Изток
ЗАСТРОЕНА ПЛОЩ 66,16 кв.м
ОБЩИ ЧАСТИ 14,14 кв.м
ОБЩА ЗАСТРОЕНА ПЛОЩ 80,30 кв.м
Към апартамента се закупува отделно изба,около 2 кв.м.!!
Има възможност за закупуване на паркомясто!
Compare listings
Сравняване