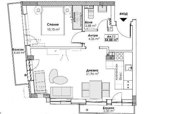
Rinex Revolution Предлага на вашето внимание двустаен апартамент в Младежки хълм. за удобството и конфорта на новите стопани жилището се предлага напълно обзаведен. Разполага с всичко необходимо за едно домакинство. За повече информация и допълнителни въпроси, относно този имот, както и за много други атрактивни предложения, не се колебайте да се свържете с нас. Ще получите коректно отношение от екипа ни от професионалисти. Нашата мисия е да превърнем наемането на новия ви дом в едно приятно преживяване. Реф номер:76703
Compare listings
Сравняване