ПРЕДЛОЖЕНИЕ ОТ „DELUXE HOMES“
Имаме удоволствието да ви представим двустаен апартамент с АКТ 14 в един от най-предпочитаните за живеене и бързоразвиващи се райони на гр. Пловдив – кв. Остромила.
• Основни характеристики:
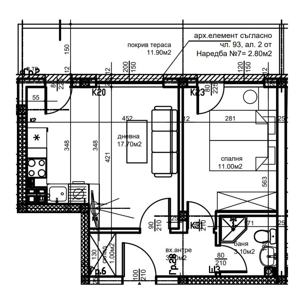
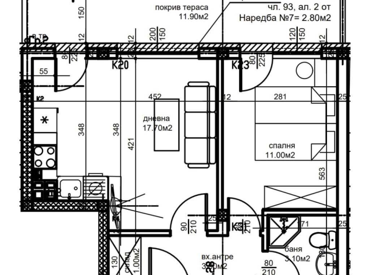
Разпределението включва: входно антре, дневна с кухненска част, спалня, баня с wc, склад и тераса
Възможност за покупка на подземни и надземни гаражи и паркоместа.
Схема на плащане! Разсрочено плащане в процес на строежа:
• 30% – при подписване на предварителен договор:
• 20% – на средата на сграда:
• 20% – на акт 14:
• 20% – 3месеца след акт 14:
• 10% – когато е готова сградата.
АКТ 16 се очаква до края на 2025г., началото на 2026г.
Доставяме резултатите, които сме обещали. Създаваме очаквания на клиентите си, които можем да посрещнем.
Инвестираме доверие, както в екипа си, така и в клиентите си.
”Deluxe Homes” предлага:
• Посредничество при покупка и продажба на недвижим имот.
• Сътрудничество за всякакъв вид кредитиране.
• Управление на имоти.
• Юридическо съдействие.
• Следпродажбени услуги.
• Безплатна консултация в наш офис.
• Работно време всеки ден от 08:00 до 21:00.
Не пропускайте възможността да разгледате този имот! Свържете се с нас за допълнителна информация и уговаряне на огледи!
КОД НА ОБЯВАТА: 142715
Compare listings
Сравняване