оф.24511
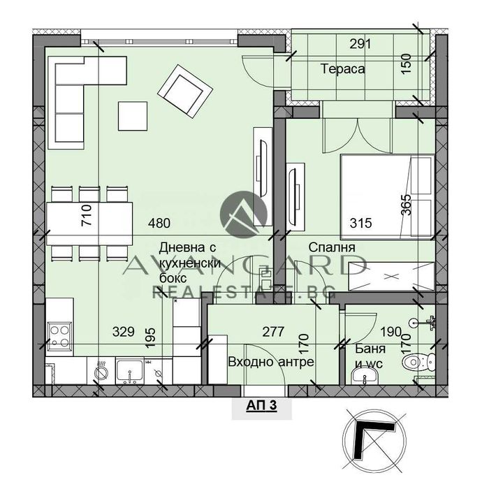
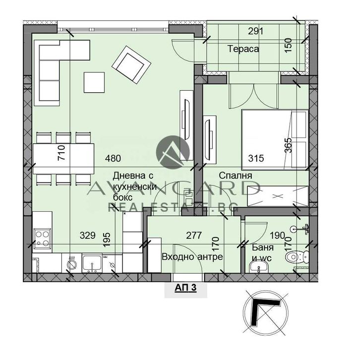
ИЗГОДНО! ПРЕД АКТ 15! ВЪЗМОЖНОСТ ЗА ЗАКУПУВАНЕ НА ПАРКОМЯСТО! Предлагаме Ви да закупите ПРОСТОРЕН ДВУСТАЕН АПАРТАМЕНТ В НОВА МОДЕРНА СГРАДА! Имотът се състои от голям хол с кухненски бокс, просторна спалня, баня с тоалетна, входно антре и тераса. Жилището ще бъде издадено на степен завършеност шпакловка и замазка, което Ви позволява да го отремонтирате и обзаведете по Ваш собствен вкус. Намира се в близост до всичко необходимо за живеене, което го прави чудесен избор за Вашият нов дом и отлична инвестиция с цел отдаване под наем
Авангард Риъл Естейт предлага Висока сигурност при покупка на имот и цялостно съдействие до финализиране на сделката пред нотариус.
Compare listings
Сравняване