Продава се Двустаен апартамент в Пловдив, Остромила – 73 кв.м за 1082 €/кв.м

  • 78,959€
  • 1,082€/m²
Област Пловдив, гр. Пловдив, Остромила
  • Апартамент
  • Тип на имота
  • 73
  • кв.м
  • 2023
  • Година на строителство
За продажба Агенция
Област Пловдив, гр. Пловдив, Остромила
  • 78,959€
  • 1,082€/m²

Накратко за имота

  • Апартамент
  • Тип на имота
  • 73
  • кв.м
  • 2023
  • Година на строителство

Описание

Компания Х представя на Вашето внимание двустаен апартамент в кв.Остромила.

МЕСТОПОЛОЖЕНИЕ:Кварталът разполага с добре развита инфраструктура,обществен транспорт, магазини, училища, детски градини и други удобства.В околността на квартала се намират няколко парка и зелени площи, които предлагат възможности за отдих и разходки на открито.Кварталът е подходящ за семейства с деца, като предлага спокойна и сигурна обстановка за живеене.

СТРОИТЕЛСТВО: Рзположен на 2-ри етаж в сграда с модерен дизайн, построена през 2023 година. Апартаментът впечатлява със светлина и пространство с панорамни гледки.

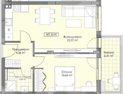
РАЗПРЕДЕЛЕНИЕ: Жилището разполага с площ от 73кв.м., състои се от кухненски бокс с хол, спалня, баня с тоалетна, тераса.

СЪСТОЯНИЕ: Жилището се предлага на шпакловка и замазка, което дава възможност на новите собственици да създадат своя нов ДОМ, придавайки му индивидуалност и стил.

Заповядайте да Ви го покажем. Използвайки нашите услуги Вие ще превърнете закупуването на новия си дом в едно приятно изживяване, ще получите персонален консултант, съдействие при кандидатстване за кредит от всички банки в България, интериорни дизайнери и екип, който да се погрижи за нужните документи по Вашата сделка. На Ваше разположение сме всеки ден, от понеделник до неделя от 09:00 до 20:00ч. Възползвайте се от безплатна консултация в наш офис, където ще ви спестим време и ще ви запознаем с всички актуални имоти в България, отговарящи на Вашето търсене. Свържете се с нас на 088777990 или на 08******90 и цитирайте кода към имота: 592-19389

Детайли

Обновено на януари 1, 1970 в 12:00 am
  • Цена: 78,959€
  • Квадратура: 73 кв.м
  • Стаи: 2
  • Година на строителство: 2023
  • Тип на имота: Апартамент
  • Операция: За продажба

Допълнителни детайли

  • Строителство: Тухла
  • Етаж: 2-ри
  • Брой етажи на сградата: 4
  • Отопление: Електричество
  • Обзавеждане: Необзаведен
  • Състояние на сградата: В строеж
  • Преход: Без преход

Особености

  • Град Пловдив
  • Област Област Пловдив
  • Квартал Остромила
  • Държава България

0 Отзив

Sort by:
Leave a Review

    Leave a Review

    Compare listings

    Сравняване
    Olx Недвижими Имоти
    • Olx Недвижими Имоти