Номер на оферта: 619820
Агенция за недвижими имоти “SEVEN HILLS” продава двустаен апартамент с обща площ от 64.84 кв.м.
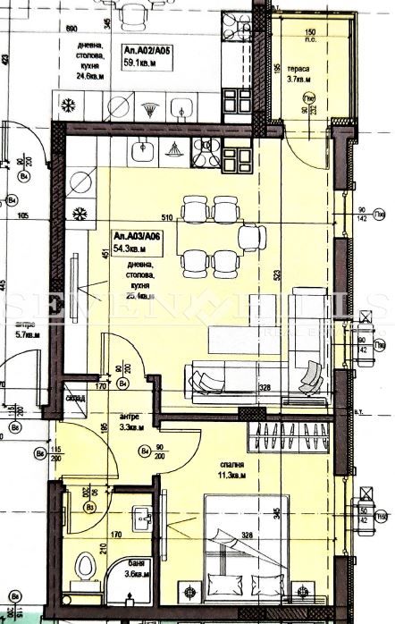
Намира се в новопостроена жилищна сграда в кв. Прослав. Апартаментът е разположен на втори от общо пет етажа и има следното разпределение: всекидневна с кухня, спалня, баня с тоалетна, входно антре и тераса.
Жилището се продава в степен на завършеност шпакловка и замазка с:
– Дограма: ALuplast 7000 – 85mm профил с троен стъклопакет с три типа стъкла – 4 сезона, бяло и 4Ка. Външното стъкло е 6мм дебелина, а дистанционерите са от иновативния топъл дистанционер. Обща дебелина на стъклопакета 48мм. Всички отваряеми части са с двойно отваряне – тип ножица.
– Шумоизолация в пода НАД апартамента – комбинация от Fonas 31 + Rockwool StepRock Plus.
– Шумоизолация в стената между две помещения на съседни обекти, изпълнена по система Rigips – Isover.
– Апартаментът има самостоятелна вентилация за кухненския аспиратор, която излиза директно на покрива и няма други включвания.
– Вътре до апартамента достигат 3 вида кабели за интернет и телевизия – оптичен, коаксиален и FTP Cat 5e.
– Централна система за омекотяване на водата и намаляване на отлаганията от котлен камък.
– Захранващи кабели, изведени до прозорците, които позволяват да се монтират пердета с електронно задвижване или външни ролетни щори с дистанционно.
Към апартамента се предлага закрито паркомясто с площ от 15м2 на цена от 10 000 евро.
За повече информация или оглед се обадете на посочения в обявата телефон за контакт.
Отговорен брокер:
Иван Генев
Compare listings
Сравняване