Продава се Двустаен апартамент в Пловдив, Съдийски – 57 кв.м за 1393 €/кв.м

  • 79,349€
  • 1,392€/m²
Област Пловдив, гр. Пловдив, Съдийски
Продава се Двустаен апартамент в Пловдив, Съдийски - 57 кв.м за 1393 €/кв.м - Снимка #4
  • Апартамент
  • Тип на имота
  • 57
  • кв.м
  • 1970
  • Година на строителство
За продажба Агенция
Област Пловдив, гр. Пловдив, Съдийски
  • 79,349€
  • 1,392€/m²

Накратко за имота

  • Апартамент
  • Тип на имота
  • 57
  • кв.м
  • 1970
  • Година на строителство

Описание

оф.21983

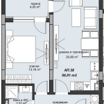
ТОП ЛОКАЦИЯ! УДОБЕН БЕЗПЛАТЕН ПАРКИНГ! Предлагаме Ви ДВУСТАЕН АПАРТАМЕНТ, С РЕАЛНА КВАДРАТУРА В СЪДИЙСКИ със следното разпределение: голям хол с кухненски бокс, просторна спалня, баня с тоалетна, входно антре и тераса. Жилището е без съвременни подобрения, което Ви позволява да го отремонтирате и обзаведете по Ваш собствен вкус. Намира се в близост до всичко необходимо в близост, което го прави чудесен избор за Вашият нов дом и отлична инвестиция с цел отдаване под наем.

Авангард Риъл Естейт предлага Висока сигурност при покупка на имот и цялостно съдействие до финализиране на сделката пред нотариус.

Детайли

Обновено на януари 1, 1970 в 12:00 am
  • Цена: 79,349€
  • Квадратура: 57 кв.м
  • Стаи: 2
  • Година на строителство: 1970
  • Тип на имота: Апартамент
  • Операция: За продажба

Допълнителни детайли

  • Строителство: Тухла
  • Етаж: 4-ти
  • Брой етажи на сградата: 4
  • Отопление: Електричество
  • Обзавеждане: Необзаведен
  • Състояние на сградата: Завършена
  • Преход: С преход

Особености

  • Град Пловдив
  • Област Област Пловдив
  • Квартал Съдийски
  • Държава България

0 Отзив

Sort by:
Leave a Review

    Leave a Review

    Compare listings

    Сравняване
    Olx Недвижими Имоти
    • Olx Недвижими Имоти