Титан Пропъртис представя на Вашето внимание двустаен апартамент с повече от прекрасна локация, а именно ж.к. Тракия. В близост са разположени търговски обекти, спирки на градски транспорт, ДГ ‘Велимира’, волейболна зала Локомотив, стадион Локомотив, фитнес център Лаута, както и парк Лаута.
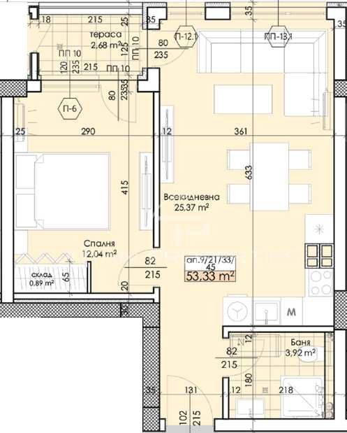
Апартаментът е ситуиран на 3-ти етаж и разполага със застроена площ от 53 кв.м., разгърната по следния практичен начин: входно антре, дневна с кухненски бокс, спалня, баня с тоалетна, тераса.
Изложение: изток. Отопление: Електричество.
Имотът се продава на шпакловка и замазка, за да може Вашето въображение да го превърне в мечтания за Вас нов ДОМ!
За оглед на това и други атрактивни предложения, не се колебайте да ни потърсите на посочения телефон или да ни изпратите данните си чрез формата за запитване на сайта. Реф. номер: 53015.
Compare listings
Сравняване